






















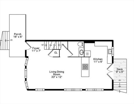
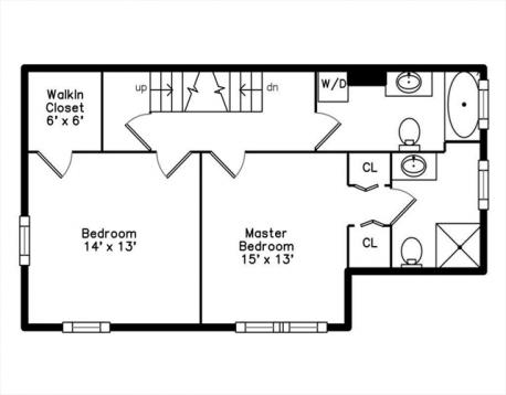
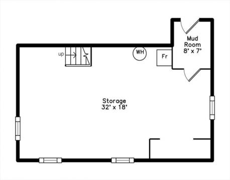
Beautiful 3BR/3.5BA Townhouse in Fantastic Watertown Square location, minutes to Mass Pike, public transportation, shops and restaurants. The first floor features an open concept, living room, dining room, half bath and kitchen with stainless steel appliances, granite counters, gas range and overhead hood. On the second and third floors, are two master suite options as well as a third bedroom and third full guest bathroom with laundry. Finished basement, parking for 3 cars, central air, gas furnace, tankless hot water heater, nice sized yard space and so much more! OPEN HOUSE Saturday 2/21 from 12-1:30!
Open House: February 21st 12:00-1:30pm
| MLS Listing ID: | 73476094 |
|---|---|
| Listing Price: | $979,900 |
| Listing Status: | Active [?] |
| Property Type: | Single Family |
| Style: | Colonial |
| Rooms: | 7 |
| Bedrooms: | 3 |
| Full Baths: | 3 |
| Half Baths: | 1 |
| Living Space: | 2019 sf. |
| Lot Size: | 0.11 acres (5000 sf.) |
| Parking: | Yes, Off-Street, Paved Driveway, Off-Street, Paved Driveway |
| Taxes: | $6,867.00 |
| Tax Year: | 2025 |
Listing Current as of February 20, 2026 6:00pm
This listing brought to you by Brian Fitzpatrick of Coldwell Banker Realty - Waltham.
The property listing data and information set forth herein were provided to MLS Property Information Network, Inc. from third party sources, including sellers, lessors and public records, and were compiled by MLS Property Information Network, Inc. The property listing data and information are for the personal, non-commercial use of consumers having a good faith interest in purchasing or leasing listed properties of the type displayed to them and may not be used for any purpose other than to identify prospective properties which such consumers may have a good faith interest in purchasing or leasing. MLS Property Information Network, Inc. and its subscribers disclaim any and all representations and warranties as to the accuracy of the property listing data and information set forth herein.
A&S Realty, Inc and their agents make no warranties or representations as to the accuracy of this data, although good faith efforts have been made to ensure that the data displayed on this page is as accurate as possible. In certain cases listings are syndicated through another agency, management company, or through the MLS. A&S Realty, Inc is not responsible for the data that is displayed from a syndicate partner. Listings may no longer be available, pricing may be subject to change, and any photos or descriptions may be of a similar unit or from a previous year.