



































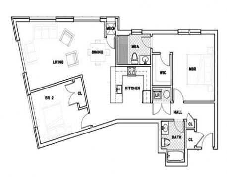
Rare opportunity to own a corner unit at Wakefield Station! Conveniently located within walking distance to shops, restaurants, Lake Quannapowitt, & the commuter rail. Built in 2018, this exceptional 2 bed 2 bath unit offers luxurious comfort and amenities you would expect from a modern condo. Upon entering, a hallway separates the entrance from the rest of the living & entertaining areas. The open-concept entertaining area is filled with natural sunlight, featuring a modern kitchen overlooking the living room. Primary bedroom features en-suite bath with double sinks and fully tiled walk-in shower. In-unit laundry, gas stove & heat, designer California Closets built-in. Crown molding, wide-plank wood flooring, and recessed lighting throughout unit. Residents enjoy a private gym, bike room, heated garage parking, ground level retail with a local favorite restaurant. Beautiful common areas include a lobby with concierge office, mail & package areas, courtyard with grill and fire pit.
| MLS Listing ID: | 73504126 |
|---|---|
| Listing Price: | $729,900 |
| Listing Status: | Active [?] |
| Property Type: | Condo |
| Style: | Mid-rise |
| Rooms: | 5 |
| Bedrooms: | 2 |
| Full Baths: | 2 |
| Living Space: | 1228 sf. |
| Lot Size: | - |
| Parking: | Yes, Off-Street, Deeded, Off-Street, Deeded |
| Taxes: | $7,102.00 |
| Tax Year: | 2025 |
| Association Fees: | $546.00 |
Listing Current as of May 15, 2026 3:00pm
This listing brought to you by Andrew Chirapha of Century 21 North East.
The property listing data and information set forth herein were provided to MLS Property Information Network, Inc. from third party sources, including sellers, lessors and public records, and were compiled by MLS Property Information Network, Inc. The property listing data and information are for the personal, non-commercial use of consumers having a good faith interest in purchasing or leasing listed properties of the type displayed to them and may not be used for any purpose other than to identify prospective properties which such consumers may have a good faith interest in purchasing or leasing. MLS Property Information Network, Inc. and its subscribers disclaim any and all representations and warranties as to the accuracy of the property listing data and information set forth herein.
A&S Realty, Inc and their agents make no warranties or representations as to the accuracy of this data, although good faith efforts have been made to ensure that the data displayed on this page is as accurate as possible. In certain cases listings are syndicated through another agency, management company, or through the MLS. A&S Realty, Inc is not responsible for the data that is displayed from a syndicate partner. Listings may no longer be available, pricing may be subject to change, and any photos or descriptions may be of a similar unit or from a previous year.