


































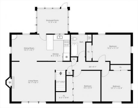
Charming Raised Ranch with gleaming hardwood floors and natural woodwork. Featuring a large fireplaced living room with a picture window that opens to eat in kitchen with built in hutch. The main level also includes three ample bedrooms all with nice closet space and a three-season sunporch. The entry level features an entry foyer and includes a fireplaced family, three quarter bath, laundry area with wet sink and an oversized garage. Good in-law potential. Conveniently located near the commuter rail with access to the major routes.
Open House: February 22nd 12:00-2:00pm
| MLS Listing ID: | 73478551 |
|---|---|
| Listing Price: | $779,900 |
| Listing Status: | New [?] |
| Property Type: | Single Family |
| Style: | Raised Ranch |
| Rooms: | 6 |
| Bedrooms: | 3 |
| Full Baths: | 1 |
| Half Baths: | 1 |
| Living Space: | 2034 sf. |
| Lot Size: | 0.3 acres (12885 sf.) |
| Parking: | Yes, Off-Street, Tandem, Paved Driveway, Off-Street, Tandem, Paved Driveway |
| Taxes: | $8,226.00 |
| Tax Year: | 2025 |
Listing Current as of February 20, 2026 8:00pm
This listing brought to you by Michael Barrett of Barrett, Chris. J., REALTORS®.
The property listing data and information set forth herein were provided to MLS Property Information Network, Inc. from third party sources, including sellers, lessors and public records, and were compiled by MLS Property Information Network, Inc. The property listing data and information are for the personal, non-commercial use of consumers having a good faith interest in purchasing or leasing listed properties of the type displayed to them and may not be used for any purpose other than to identify prospective properties which such consumers may have a good faith interest in purchasing or leasing. MLS Property Information Network, Inc. and its subscribers disclaim any and all representations and warranties as to the accuracy of the property listing data and information set forth herein.
A&S Realty, Inc and their agents make no warranties or representations as to the accuracy of this data, although good faith efforts have been made to ensure that the data displayed on this page is as accurate as possible. In certain cases listings are syndicated through another agency, management company, or through the MLS. A&S Realty, Inc is not responsible for the data that is displayed from a syndicate partner. Listings may no longer be available, pricing may be subject to change, and any photos or descriptions may be of a similar unit or from a previous year.