



































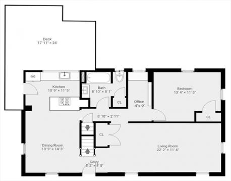
Expansive Cape Cod in popular Lakeside neighborhood. Wonderfully customized by craftsman owner with details and upgrades not often found at this price point. Open concept kitchen and dining area. Unique kitchen finishes include shou sugi ban wall & overhead light fixture and Clerestory widow that overlooks expansive composite deck, patio and large level yard. 1st floor includes freshly refinished maple floors, oversized living room, quaint office with custom builtins, newer alluringly tiled full bath with large soaking tub and 3rd bedroom. The primary suite features gorgeous, exquisitely tiled 3/4 bath with porcelain radiant heated floors, programmable digital rain shower, walk in closet with built -ins and addition eave storage. Expansive composite deck steps down to large paver patio, level lot and shed with power. All this in close proximity to Lake Q with all it's amenities including the farmers market at Hall Park, Veterans Field, pickleball courts and a commuter rail stop.
Open House: November 8th 11:30-1:00pm
| MLS Listing ID: | 73451679 |
|---|---|
| Listing Price: | $799,900 |
| Listing Status: | New [?] |
| Property Type: | Single Family |
| Style: | Cape |
| Rooms: | 7 |
| Bedrooms: | 3 |
| Full Baths: | 2 |
| Living Space: | 1638 sf. |
| Lot Size: | 0.15 acres (6421 sf.) |
| Parking: | Yes, Off-Street, Paved Driveway, Off-Street, Paved Driveway |
| Taxes: | $7,204.00 |
| Tax Year: | 2025 |
Listing Current as of November 06, 2025 12:00am
This listing brought to you by Christopher Barrett of Barrett, Chris. J., REALTORS®.
The property listing data and information set forth herein were provided to MLS Property Information Network, Inc. from third party sources, including sellers, lessors and public records, and were compiled by MLS Property Information Network, Inc. The property listing data and information are for the personal, non-commercial use of consumers having a good faith interest in purchasing or leasing listed properties of the type displayed to them and may not be used for any purpose other than to identify prospective properties which such consumers may have a good faith interest in purchasing or leasing. MLS Property Information Network, Inc. and its subscribers disclaim any and all representations and warranties as to the accuracy of the property listing data and information set forth herein.
A&S Realty, Inc and their agents make no warranties or representations as to the accuracy of this data, although good faith efforts have been made to ensure that the data displayed on this page is as accurate as possible. In certain cases listings are syndicated through another agency, management company, or through the MLS. A&S Realty, Inc is not responsible for the data that is displayed from a syndicate partner. Listings may no longer be available, pricing may be subject to change, and any photos or descriptions may be of a similar unit or from a previous year.