



































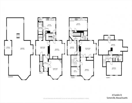
Rare opportunity to own an award-winning Queen Anne Victorian property with modern updates in East Somerville. Offering a total of five bedrooms and three full bathrooms over three floors, this two-family residence provides flexibility for owners and investors alike. Unit 1 is a spacious 1-bed, 1-bath, living room, dining room, and kitchen. Unit 2 on the 2nd and 3rd floors features 4 bedrooms, 2 bathrooms, a living room, office, kitchen, and in-unit laundry. Updates include a newer roof, Gas heating/hot water systems, kitchens and baths, and exterior painting. Hardwood floors & separate metered utilities. Full unfinished basement offers storage space and laundry for Unit 1. Off-street parking for 4 cars. Just off Broadway, with an abundance of shops and restaurants, close to Assembly Row, and ideally positioned for commuters, just minutes to the MBTA Orange & Green Lines. Easy access to I-93S to Boston, or north to New Hampshire, the location supports both convenience and lifestyle
| MLS Listing ID: | 73501024 |
|---|---|
| Listing Price: | $1,250,000 |
| Listing Status: | New [?] |
| Neighborhood: | East Somerville |
| Property Type: | Multi Family |
| Bedrooms: | 5 |
| Full Baths: | 3 |
| Living Space: | 3094 sf. |
| Lot Size: | 0.08 acres (3500 sf.) |
| Parking: | Yes |
| Taxes: | $11,232.00 |
| Tax Year: | 2025 |
Listing Current as of April 14, 2026 3:00pm
This listing brought to you by Anne Kennedy of Coldwell Banker Realty - Newton.
The property listing data and information set forth herein were provided to MLS Property Information Network, Inc. from third party sources, including sellers, lessors and public records, and were compiled by MLS Property Information Network, Inc. The property listing data and information are for the personal, non-commercial use of consumers having a good faith interest in purchasing or leasing listed properties of the type displayed to them and may not be used for any purpose other than to identify prospective properties which such consumers may have a good faith interest in purchasing or leasing. MLS Property Information Network, Inc. and its subscribers disclaim any and all representations and warranties as to the accuracy of the property listing data and information set forth herein.
A&S Realty, Inc and their agents make no warranties or representations as to the accuracy of this data, although good faith efforts have been made to ensure that the data displayed on this page is as accurate as possible. In certain cases listings are syndicated through another agency, management company, or through the MLS. A&S Realty, Inc is not responsible for the data that is displayed from a syndicate partner. Listings may no longer be available, pricing may be subject to change, and any photos or descriptions may be of a similar unit or from a previous year.