























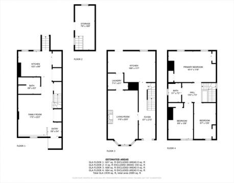
SINGLE FAMILY W/ PERMITTED IN-LAW, ALLOWED TO BE RENTED. Offered for the first time in decades, this charming attached, end unit, single-family in East Somerville has been thoughtfully rehabbed and is move-in ready. Featuring 4 bedrooms and 2 full baths across 3 levels, the flexible layout includes a finished lower level with a full bath, exterior access, and in-law potential. Enjoy hardwood floors throughout the main levels, a sunlit bay-windowed living room, and a spacious eat-in kitchen, complete with modern cabinetry, stone counters, SS appliances & outdoor access. Luxurious, modern, tiled bathrooms on multiple levels. Cooling and heating are handled by a ductless mini-split system for year-round comfort. Located on a quiet one-way street, this home offers quick access to both the Orange Line and Green Line T stations, plus shopping, restaurants, and more. The fenced yard, and additional storage shed add practicality and charm. Great house with city vibes and commuter ease.
Open House: November 1st 12:30-2:00pm
| MLS Listing ID: | 73449307 |
|---|---|
| Listing Price: | $899,000 |
| Listing Status: | New [?] |
| Neighborhood: | East Somerville |
| Property Type: | Multi Family |
| Bedrooms: | 4 |
| Full Baths: | 2 |
| Living Space: | 1880 sf. |
| Lot Size: | 0.05 acres (2392 sf.) |
| Parking: | - |
| Taxes: | $7,405.00 |
| Tax Year: | 2025 |
Listing Current as of October 30, 2025 3:00pm
This listing brought to you by Sabbor Sheikh of Coldwell Banker Realty - Boston.
The property listing data and information set forth herein were provided to MLS Property Information Network, Inc. from third party sources, including sellers, lessors and public records, and were compiled by MLS Property Information Network, Inc. The property listing data and information are for the personal, non-commercial use of consumers having a good faith interest in purchasing or leasing listed properties of the type displayed to them and may not be used for any purpose other than to identify prospective properties which such consumers may have a good faith interest in purchasing or leasing. MLS Property Information Network, Inc. and its subscribers disclaim any and all representations and warranties as to the accuracy of the property listing data and information set forth herein.
A&S Realty, Inc and their agents make no warranties or representations as to the accuracy of this data, although good faith efforts have been made to ensure that the data displayed on this page is as accurate as possible. In certain cases listings are syndicated through another agency, management company, or through the MLS. A&S Realty, Inc is not responsible for the data that is displayed from a syndicate partner. Listings may no longer be available, pricing may be subject to change, and any photos or descriptions may be of a similar unit or from a previous year.