


























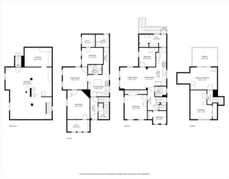
Two-family home in Somerville’s Winter Hill neighborhood offering flexibility for investors, developers, or owner-occupants. Each unit provides comfortable living space with strong rental potential, and the property includes generous off-street parking—on a comfortable size lot, lending to the possibility adding a detached ADU in the rear. Conveniently located near Assembly Row, the Somerville Community Path, and multiple MBTA options including the Green Line at Gilman Square and the Orange Line at Assembly/SullivanSq, providing easy access to Boston, Cambridge, and surrounding job centers. The neighborhood continues to see steady growth with new restaurants, shops, Universities and transit improvements contributing to strong housing demand. Whether you're looking to generate rental income, renovate and add value, or live in one unit while renting the other, this is a solid opportunity in one of Somerville’s most active housing markets.
Open House: March 6th 4:00-5:00pm
| MLS Listing ID: | 73482188 |
|---|---|
| Listing Price: | $995,000 |
| Listing Status: | New [?] |
| Neighborhood: | Winter Hill |
| Property Type: | Multi Family |
| Bedrooms: | 6 |
| Full Baths: | 2 |
| Living Space: | 2476 sf. |
| Lot Size: | 0.09 acres (4000 sf.) |
| Parking: | Yes |
| Taxes: | $10,012.00 |
| Tax Year: | 2025 |
Listing Current as of March 04, 2026 7:00am
This listing brought to you by Sabbor Sheikh of Coldwell Banker Realty - Boston.
The property listing data and information set forth herein were provided to MLS Property Information Network, Inc. from third party sources, including sellers, lessors and public records, and were compiled by MLS Property Information Network, Inc. The property listing data and information are for the personal, non-commercial use of consumers having a good faith interest in purchasing or leasing listed properties of the type displayed to them and may not be used for any purpose other than to identify prospective properties which such consumers may have a good faith interest in purchasing or leasing. MLS Property Information Network, Inc. and its subscribers disclaim any and all representations and warranties as to the accuracy of the property listing data and information set forth herein.
A&S Realty, Inc and their agents make no warranties or representations as to the accuracy of this data, although good faith efforts have been made to ensure that the data displayed on this page is as accurate as possible. In certain cases listings are syndicated through another agency, management company, or through the MLS. A&S Realty, Inc is not responsible for the data that is displayed from a syndicate partner. Listings may no longer be available, pricing may be subject to change, and any photos or descriptions may be of a similar unit or from a previous year.