



























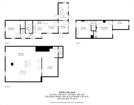
---First Open house: Sat 3/14 3:30 Pm - 4:30 Pm ---Side-by-side two-family on a quiet side street, 1 block from Union Square. A strong opportunity for investment and potential future development. Each unit has its own entrance, offers 3 beds and 1 bath; the left side has a curb cut and can accommodate 2 vehicles. Kitchens and bathrooms were renovated within the last 5 years, and systems are separate except for water and sewer. Cap rate is above 5%. Public records show 1,434 sq ft, while the floor plan measurement indicates more than 1,600 sq ft. With a nearly 4,000 sq ft lot, there are value-add potential through basement finishing and adding dormers if possible. Convenient access to McGrath Highway and I-93; 1.9 miles to Assembly Square; about 1.2 miles to Harvard and MIT. Supermarkets and tons of restaurants are in walking distance.
Open House: March 14th 3:30-4:30pm
| MLS Listing ID: | 73486053 |
|---|---|
| Listing Price: | $1,198,000 |
| Listing Status: | New [?] |
| Property Type: | Multi Family |
| Bedrooms: | 6 |
| Full Baths: | 2 |
| Living Space: | 1654 sf. |
| Lot Size: | 0.09 acres (3920 sf.) |
| Parking: | Yes |
| Taxes: | $10,329.00 |
| Tax Year: | 2026 |
Listing Current as of March 13, 2026 11:00pm
This listing brought to you by Nathan Long of Coldwell Banker Realty - Cambridge.
The property listing data and information set forth herein were provided to MLS Property Information Network, Inc. from third party sources, including sellers, lessors and public records, and were compiled by MLS Property Information Network, Inc. The property listing data and information are for the personal, non-commercial use of consumers having a good faith interest in purchasing or leasing listed properties of the type displayed to them and may not be used for any purpose other than to identify prospective properties which such consumers may have a good faith interest in purchasing or leasing. MLS Property Information Network, Inc. and its subscribers disclaim any and all representations and warranties as to the accuracy of the property listing data and information set forth herein.
A&S Realty, Inc and their agents make no warranties or representations as to the accuracy of this data, although good faith efforts have been made to ensure that the data displayed on this page is as accurate as possible. In certain cases listings are syndicated through another agency, management company, or through the MLS. A&S Realty, Inc is not responsible for the data that is displayed from a syndicate partner. Listings may no longer be available, pricing may be subject to change, and any photos or descriptions may be of a similar unit or from a previous year.