


















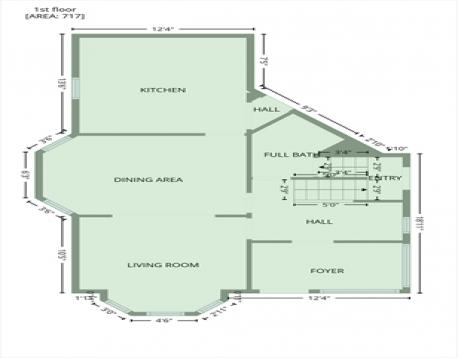
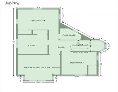
Casting its shadow on the Somerville community path, this 7 room, 4 br, 2 ba Victorian cottage c.1890 is exactly where you’d like to live! Steps to Mass Ave., even fewer steps to Davis Square, and on a pedestrian-friendly corner that feels like an urban cul-de-sac. With the walkers, joggers, and bicyclists outnumbering cars at least 30-1, the cozy yard and private deck are great places for summer meals, gardening, and people watching. Your finishing touches will be rewarded with instant equity given the generous room sizes, high ceilings, curb appeal, and convenient layout. The unfinished basement and walk-up attic offer potential expansion opportunities. Near-perfect WalkScore of 98 and BikeScore of 97 mean you’ll have plenty of opportunity to burn off your meals at nearby hotspots like the Burren, Life Alive Cafe, and Frank's Steakhouse.
| MLS Listing ID: | 73494393 |
|---|---|
| Listing Price: | $1,199,900 |
| Listing Status: | New [?] |
| Neighborhood: | Davis Square |
| Property Type: | Single Family |
| Style: | Victorian |
| Rooms: | 7 |
| Bedrooms: | 4 |
| Full Baths: | 2 |
| Living Space: | 1390 sf. |
| Lot Size: | 0.05 acres (2179 sf.) |
| Parking: | Yes, On Street Permit |
| Taxes: | $12,063.00 |
| Tax Year: | 2025 |
Listing Current as of April 05, 2026 6:00am
This listing brought to you by Charles Ball of Berkshire Hathaway HomeServices Commonwealth Real Estate.
The property listing data and information set forth herein were provided to MLS Property Information Network, Inc. from third party sources, including sellers, lessors and public records, and were compiled by MLS Property Information Network, Inc. The property listing data and information are for the personal, non-commercial use of consumers having a good faith interest in purchasing or leasing listed properties of the type displayed to them and may not be used for any purpose other than to identify prospective properties which such consumers may have a good faith interest in purchasing or leasing. MLS Property Information Network, Inc. and its subscribers disclaim any and all representations and warranties as to the accuracy of the property listing data and information set forth herein.
A&S Realty, Inc and their agents make no warranties or representations as to the accuracy of this data, although good faith efforts have been made to ensure that the data displayed on this page is as accurate as possible. In certain cases listings are syndicated through another agency, management company, or through the MLS. A&S Realty, Inc is not responsible for the data that is displayed from a syndicate partner. Listings may no longer be available, pricing may be subject to change, and any photos or descriptions may be of a similar unit or from a previous year.