















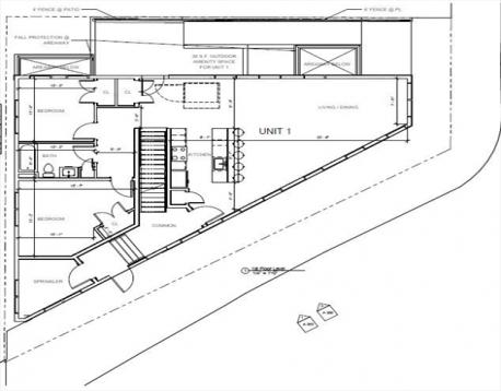
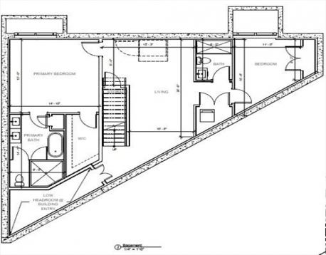
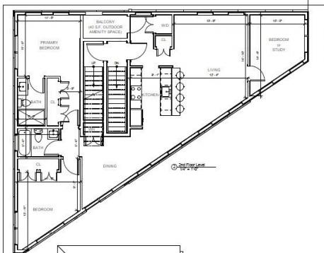
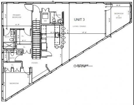
Excellent development opportunity in Somerville, just 0.3 miles from East Somerville Green Line Station, on the bike path and great proximity to East Cambridge and downtown Boston. Located on the edge of the rapidly growing Inner Belt neighborhood, this ZBA-approved 3-unit condo project is ideal for developers or end users looking to create a community and build equity. The first floor unit features 4 beds and 2 baths (2843 SF); the middle unit offers 3 beds and 2 baths (1383 SF); and the penthouse unit includes 3 beds, 2.5 baths, and a roof deck (1590 SF including roof deck. The project comes with all site and architectural plans which are approved by the ZBA and is awaiting traffic plan analysis for final special building permit approval. Seller open to offers subject to building permit approval. Full package available upon request.
| MLS Listing ID: | 73444203 |
|---|---|
| Listing Price: | $929,900 |
| Listing Status: | Reactivated [?] |
| Property Type: | Multi Family |
| Bedrooms: | 10 |
| Full Baths: | 6 |
| Half Baths: | 1 |
| Living Space: | 5735 sf. |
| Lot Size: | 0.06 acres (2507 sf.) |
| Parking: | - |
| Taxes: | $12,574.00 |
| Tax Year: | 2025 |
Listing Current as of January 18, 2026 9:00pm
This listing brought to you by Brian Fitzpatrick of Coldwell Banker Realty - Waltham.
The property listing data and information set forth herein were provided to MLS Property Information Network, Inc. from third party sources, including sellers, lessors and public records, and were compiled by MLS Property Information Network, Inc. The property listing data and information are for the personal, non-commercial use of consumers having a good faith interest in purchasing or leasing listed properties of the type displayed to them and may not be used for any purpose other than to identify prospective properties which such consumers may have a good faith interest in purchasing or leasing. MLS Property Information Network, Inc. and its subscribers disclaim any and all representations and warranties as to the accuracy of the property listing data and information set forth herein.
A&S Realty, Inc and their agents make no warranties or representations as to the accuracy of this data, although good faith efforts have been made to ensure that the data displayed on this page is as accurate as possible. In certain cases listings are syndicated through another agency, management company, or through the MLS. A&S Realty, Inc is not responsible for the data that is displayed from a syndicate partner. Listings may no longer be available, pricing may be subject to change, and any photos or descriptions may be of a similar unit or from a previous year.