



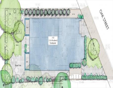
Exceptional opportunity to develop a three-family property in Union Square. Buildable lots in Somerville are increasingly rare, making this a unique chance for developers, investors, or end users to create a high-demand asset in a thriving market. Vacant land sold with progress design plans prepared prior to city submission, offering flexibility for customization before filing with the City of Somerville. Plans are believed to comply with zoning requirements; however, buyer to perform all due diligence. Strong potential for long-term rental income, condominium sell-out, or portfolio appreciation in one of Greater Boston’s most dynamic neighborhoods. Property may be viewed from the sidewalk at any time. No site access without appointment. Property reports available upon request. Offers reviewed as presented.
| MLS Listing ID: | 73478131 |
|---|---|
| Listing Price: | $995,000 |
| Listing Status: | New [?] |
| Neighborhood: | Inman Square |
| Property Type: | Multi Family |
| Bedrooms: | 8 |
| Full Baths: | 7 |
| Half Baths: | 1 |
| Living Space: | 5461 sf. |
| Lot Size: | 0.08 acres (3484 sf.) |
| Parking: | - |
| Taxes: | $8,195.00 |
| Tax Year: | 2025 |
Listing Current as of February 20, 2026 8:00pm
This listing brought to you by William Senne of Senne.
The property listing data and information set forth herein were provided to MLS Property Information Network, Inc. from third party sources, including sellers, lessors and public records, and were compiled by MLS Property Information Network, Inc. The property listing data and information are for the personal, non-commercial use of consumers having a good faith interest in purchasing or leasing listed properties of the type displayed to them and may not be used for any purpose other than to identify prospective properties which such consumers may have a good faith interest in purchasing or leasing. MLS Property Information Network, Inc. and its subscribers disclaim any and all representations and warranties as to the accuracy of the property listing data and information set forth herein.
A&S Realty, Inc and their agents make no warranties or representations as to the accuracy of this data, although good faith efforts have been made to ensure that the data displayed on this page is as accurate as possible. In certain cases listings are syndicated through another agency, management company, or through the MLS. A&S Realty, Inc is not responsible for the data that is displayed from a syndicate partner. Listings may no longer be available, pricing may be subject to change, and any photos or descriptions may be of a similar unit or from a previous year.