

































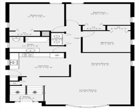
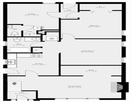
Desirable West Revere two-family! Unit 1 offers 3 bedrooms, a formal dining room, inviting living room, full tile bath with custom cabinetry, in unit laundry, hardwood floors, and a lower-level family room with cozy fireplace. Unit 2 features a comfortable 1 bedroom layout with kitchen and living room, ideal for extended family or rental income. Step outside to your private backyard oasis featuring an inground pool, expansive patio, access to a half bath—perfect for summer entertaining. Central air conditioning, fully fenced in backyard and 3-car parking with 2 driveways complete this great property! This prime location is walking distance to schools and MBTA bus access, close to shopping with easy access to Boston and everything this vibrant city has to offer.
Open House: November 15th 12:30-2:00pm
| MLS Listing ID: | 73454248 |
|---|---|
| Listing Price: | $825,000 |
| Listing Status: | New [?] |
| Property Type: | Multi Family |
| Bedrooms: | 4 |
| Full Baths: | 2 |
| Half Baths: | 1 |
| Living Space: | 2241 sf. |
| Lot Size: | 0.17 acres (7501 sf.) |
| Parking: | Yes |
| Taxes: | $6,647.00 |
| Tax Year: | 2025 |
Listing Current as of November 13, 2025 12:00am
This listing brought to you by Stephanie Mower of Charlesgate Realty Group LLC.
The property listing data and information set forth herein were provided to MLS Property Information Network, Inc. from third party sources, including sellers, lessors and public records, and were compiled by MLS Property Information Network, Inc. The property listing data and information are for the personal, non-commercial use of consumers having a good faith interest in purchasing or leasing listed properties of the type displayed to them and may not be used for any purpose other than to identify prospective properties which such consumers may have a good faith interest in purchasing or leasing. MLS Property Information Network, Inc. and its subscribers disclaim any and all representations and warranties as to the accuracy of the property listing data and information set forth herein.
A&S Realty, Inc and their agents make no warranties or representations as to the accuracy of this data, although good faith efforts have been made to ensure that the data displayed on this page is as accurate as possible. In certain cases listings are syndicated through another agency, management company, or through the MLS. A&S Realty, Inc is not responsible for the data that is displayed from a syndicate partner. Listings may no longer be available, pricing may be subject to change, and any photos or descriptions may be of a similar unit or from a previous year.