


















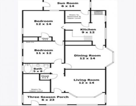
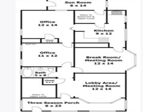
382 Revere Pkwy presents a versatile mixed-use two-family opportunity in a high-traffic, high-visibility location with strong upside for investors, owner-occupants, and business owners alike. The first floor has long been used as office space and offers excellent potential for residential conversion, featuring a flexible layout with two meeting rooms, two private offices, a kitchen, full bath and enclosed porch. The second-floor residential unit offers a comfortable traditional layout with two bedrooms, living room, dining room, kitchen, full bath and enclosed front and back porches. An ample basement provides valuable storage space. Whether you are looking for income potential, a live/work setup, or a value-add investment, this property offers a range of possibilities. Parking for 7 cars. Close proximity to major routes, local businesses, restaurants, shopping, public transportation, Boston and Logan Airport.
Open House: April 25th 12:00-2:00pm
| MLS Listing ID: | 73504965 |
|---|---|
| Listing Price: | $814,900 |
| Listing Status: | New [?] |
| Property Type: | Multi Family |
| Bedrooms: | 6 |
| Full Baths: | 2 |
| Living Space: | 2274 sf. |
| Lot Size: | 0.09 acres (4051 sf.) |
| Parking: | Yes |
| Taxes: | $10,770.00 |
| Tax Year: | 2026 |
Listing Current as of April 23, 2026 11:00pm
This listing brought to you by Carol Beatrice of Real Broker MA, LLC.
The property listing data and information set forth herein were provided to MLS Property Information Network, Inc. from third party sources, including sellers, lessors and public records, and were compiled by MLS Property Information Network, Inc. The property listing data and information are for the personal, non-commercial use of consumers having a good faith interest in purchasing or leasing listed properties of the type displayed to them and may not be used for any purpose other than to identify prospective properties which such consumers may have a good faith interest in purchasing or leasing. MLS Property Information Network, Inc. and its subscribers disclaim any and all representations and warranties as to the accuracy of the property listing data and information set forth herein.
A&S Realty, Inc and their agents make no warranties or representations as to the accuracy of this data, although good faith efforts have been made to ensure that the data displayed on this page is as accurate as possible. In certain cases listings are syndicated through another agency, management company, or through the MLS. A&S Realty, Inc is not responsible for the data that is displayed from a syndicate partner. Listings may no longer be available, pricing may be subject to change, and any photos or descriptions may be of a similar unit or from a previous year.