

































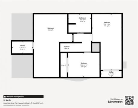
Welcome to this beautifully renovated, very spacious cape style home, located on a quiet street just few minutes from Route 1. Relaxing foyer entrance greets you as you enter the home. You will fall in love with beautiful, wide-plank Oak Flooring, the open concept living room and dining room area and modern kitchen w/ built ins, farmhouse sink, granite counters, SS appliances, a walk in pantry and full bathroom complete the main floor. The second floor offers a large master bedroom w/walk in closet. 2 ample sized bedrooms with double door closets, second floor laundry, a full bathroom to die for. The home features on demand tankless hot water, recess lighting, central air, fully insulated, newer roof and window. 3-4 car driveway, a fence in back yard with a band new deck and a stone patio. Conveniently located w/easy access to highway, public transportation, minutes from the T-Blue line. Video: https://youtu.be/CbpAiWWIjVM
| MLS Listing ID: | 73492959 |
|---|---|
| Listing Price: | $765,000 |
| Listing Status: | Contingent [?] |
| Property Type: | Single Family |
| Style: | Cape |
| Rooms: | 5 |
| Bedrooms: | 3 |
| Full Baths: | 2 |
| Living Space: | 1782 sf. |
| Lot Size: | 0.09 acres (3999 sf.) |
| Parking: | Yes, Off-street |
| Taxes: | $6,088.14 |
| Tax Year: | 2026 |
Listing Current as of April 19, 2026 11:00pm
This listing brought to you by Jacek Rosa of Prime Realty.
The property listing data and information set forth herein were provided to MLS Property Information Network, Inc. from third party sources, including sellers, lessors and public records, and were compiled by MLS Property Information Network, Inc. The property listing data and information are for the personal, non-commercial use of consumers having a good faith interest in purchasing or leasing listed properties of the type displayed to them and may not be used for any purpose other than to identify prospective properties which such consumers may have a good faith interest in purchasing or leasing. MLS Property Information Network, Inc. and its subscribers disclaim any and all representations and warranties as to the accuracy of the property listing data and information set forth herein.
A&S Realty, Inc and their agents make no warranties or representations as to the accuracy of this data, although good faith efforts have been made to ensure that the data displayed on this page is as accurate as possible. In certain cases listings are syndicated through another agency, management company, or through the MLS. A&S Realty, Inc is not responsible for the data that is displayed from a syndicate partner. Listings may no longer be available, pricing may be subject to change, and any photos or descriptions may be of a similar unit or from a previous year.