































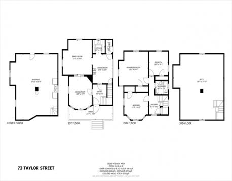
Attention savvy investors, contractors, and buyers ready to put in the work to create something special. This property offers generous space, solid potential, and the opportunity to turn it into a dream home. Features include a spacious living room, dining room, eat-in kitchen, hardwood floors, and three generously sized bedrooms with good closet space. The walk-up attic offers exciting possibilities for a fourth bedroom, family room, home office, or flexible bonus space. Res B zoning may provide the potential for conversion to a multi-family home (Buyer to verify) . Conveniently located near area amenities, public transportation, and major highways with easy access to downtown Boston and the South Shore. Do not miss this Quincy opportunity.
Open House: April 18th 11:00-12:30pm
| MLS Listing ID: | 73502540 |
|---|---|
| Listing Price: | $610,000 |
| Listing Status: | New [?] |
| Property Type: | Single Family |
| Style: | Other (see Remarks) |
| Rooms: | 7 |
| Bedrooms: | 3 |
| Full Baths: | 1 |
| Living Space: | 1520 sf. |
| Lot Size: | 0.14 acres (6030 sf.) |
| Parking: | Yes, Off-Street, Tandem, Off-Street, Tandem |
| Taxes: | $7,408.00 |
| Tax Year: | 2025 |
Listing Current as of April 17, 2026 12:00am
This listing brought to you by Bernice Osborne of Keller Williams Realty.
The property listing data and information set forth herein were provided to MLS Property Information Network, Inc. from third party sources, including sellers, lessors and public records, and were compiled by MLS Property Information Network, Inc. The property listing data and information are for the personal, non-commercial use of consumers having a good faith interest in purchasing or leasing listed properties of the type displayed to them and may not be used for any purpose other than to identify prospective properties which such consumers may have a good faith interest in purchasing or leasing. MLS Property Information Network, Inc. and its subscribers disclaim any and all representations and warranties as to the accuracy of the property listing data and information set forth herein.
A&S Realty, Inc and their agents make no warranties or representations as to the accuracy of this data, although good faith efforts have been made to ensure that the data displayed on this page is as accurate as possible. In certain cases listings are syndicated through another agency, management company, or through the MLS. A&S Realty, Inc is not responsible for the data that is displayed from a syndicate partner. Listings may no longer be available, pricing may be subject to change, and any photos or descriptions may be of a similar unit or from a previous year.