























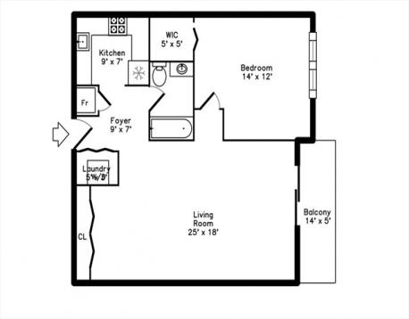
Move right into this updated one-bedroom residence at the Aquarius Condominium, ideally positioned just moments from Quincy Center. With an easy, open layout and great natural light, the living and dining spaces flow seamlessly to a private balcony, a nice extension of the living space. The kitchen offers crisp finishes with updated surfaces and ample cabinetry. Storage is a standout here, with excellent closet space throughout, plus an additional deeded storage closet in the building. Recent improvements include a newer central heating/AC system (2018) and a new washer/ dryer (in-unit), bringing everyday convenience, and the well-maintained, professionally managed building offers peace of mind. One deeded parking space plus generous guest parking make daily living easy. All of this in a highly accessible location close to Quincy Center’s Red Line, restaurants, shops, and major routes.A smart entry point into homeownership or a low-maintenance option for those looking to simplify
| MLS Listing ID: | 73490993 |
|---|---|
| Listing Price: | $335,000 |
| Listing Status: | Active [?] |
| Property Type: | Condo |
| Style: | Low-rise |
| Rooms: | 4 |
| Bedrooms: | 1 |
| Full Baths: | 1 |
| Living Space: | 680 sf. |
| Lot Size: | - |
| Parking: | Yes, Off-street |
| Taxes: | $3,497.00 |
| Tax Year: | 2025 |
| Association Fees: | $433.21 |
Listing Current as of April 01, 2026 10:00am
This listing brought to you by Erin Feeney of Ceres Real Estate.
The property listing data and information set forth herein were provided to MLS Property Information Network, Inc. from third party sources, including sellers, lessors and public records, and were compiled by MLS Property Information Network, Inc. The property listing data and information are for the personal, non-commercial use of consumers having a good faith interest in purchasing or leasing listed properties of the type displayed to them and may not be used for any purpose other than to identify prospective properties which such consumers may have a good faith interest in purchasing or leasing. MLS Property Information Network, Inc. and its subscribers disclaim any and all representations and warranties as to the accuracy of the property listing data and information set forth herein.
A&S Realty, Inc and their agents make no warranties or representations as to the accuracy of this data, although good faith efforts have been made to ensure that the data displayed on this page is as accurate as possible. In certain cases listings are syndicated through another agency, management company, or through the MLS. A&S Realty, Inc is not responsible for the data that is displayed from a syndicate partner. Listings may no longer be available, pricing may be subject to change, and any photos or descriptions may be of a similar unit or from a previous year.