



























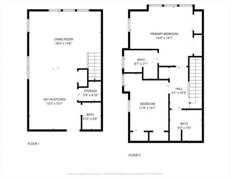
Quincy’s Brand New Construction! Just a 10-minute walk to the Quincy Adams MBTA Station, this brand-new bi-level condo offers two levels of stylish living with central A/C (2 zones), hardwood floors throughout, and private extra storage. The main level features a bright open-concept layout with a modern kitchen, center island, dining area, and half bath perfect for entertaining. Kitchen hood vent directly outside. Upstairs, you’ll find two spacious bedrooms, two full baths, generous closets (including walk-in), and in-unit laundry with a new all-in-one washer/dryer. Quick highway access, and proximity to Quincy Center’s top restaurants, shops, and cafes — all within minutes. Experience comfort and convenience in Quincy’s most exciting new development. Additional parking space is available for purchase. Remaining 4 units available …
Open House: November 9th 12:30-2:00pm
| MLS Listing ID: | 73451622 |
|---|---|
| Listing Price: | $728,000 |
| Listing Status: | New [?] |
| Property Type: | Condo |
| Style: | Townhouse, Mid-Rise, Townhouse, Mid-Rise |
| Rooms: | 5 |
| Bedrooms: | 2 |
| Full Baths: | 2 |
| Half Baths: | 1 |
| Living Space: | 1469 sf. |
| Lot Size: | - |
| Parking: | Yes, Off-Street, Deeded, Off-Street, Deeded |
| Taxes: | $9,999.00 |
| Tax Year: | 2025 |
| Association Fees: | $310.00 |
Listing Current as of November 06, 2025 12:00am
This listing brought to you by Rebecca Huang of East West Real Estate, LLC.
The property listing data and information set forth herein were provided to MLS Property Information Network, Inc. from third party sources, including sellers, lessors and public records, and were compiled by MLS Property Information Network, Inc. The property listing data and information are for the personal, non-commercial use of consumers having a good faith interest in purchasing or leasing listed properties of the type displayed to them and may not be used for any purpose other than to identify prospective properties which such consumers may have a good faith interest in purchasing or leasing. MLS Property Information Network, Inc. and its subscribers disclaim any and all representations and warranties as to the accuracy of the property listing data and information set forth herein.
A&S Realty, Inc and their agents make no warranties or representations as to the accuracy of this data, although good faith efforts have been made to ensure that the data displayed on this page is as accurate as possible. In certain cases listings are syndicated through another agency, management company, or through the MLS. A&S Realty, Inc is not responsible for the data that is displayed from a syndicate partner. Listings may no longer be available, pricing may be subject to change, and any photos or descriptions may be of a similar unit or from a previous year.