































Opportunity awaits at 283 Copeland St in Quincy! This multi-family property offers two units with a combined total of 6 bedrooms (4-bedroom unit and 2-bedroom unit), providing flexible living arrangements for owner-occupants, investors, or extended households. Owned and cared for by the same family for three generations, this home presents a rare chance to restore and add value in a well-established neighborhood. Conveniently located near local amenities, public transportation, major routes, and Quincy Center, this property offers strong potential for those looking to renovate or customize to their vision. Property will require updates and is best suited for buyers seeking a project or investment opportunity. Roof about 5 years old, 1 unit has updated gas heating system. Being sold as-is. Buyers and agents to perform their own due diligence. Property occupied, do not walk without appointment
Open House: April 17th 3:30-4:00pm
| MLS Listing ID: | 73501572 |
|---|---|
| Listing Price: | $699,000 |
| Listing Status: | New [?] |
| Property Type: | Multi Family |
| Bedrooms: | 6 |
| Full Baths: | 2 |
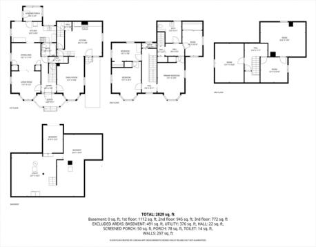
| Living Space: | 2829 sf. |
| Lot Size: | 0.08 acres (3355 sf.) |
| Parking: | Yes |
| Taxes: | $8,000.00 |
| Tax Year: | 2025 |
Listing Current as of April 17, 2026 12:00am
This listing brought to you by Stacey Ballerino of Real Broker MA, LLC.
The property listing data and information set forth herein were provided to MLS Property Information Network, Inc. from third party sources, including sellers, lessors and public records, and were compiled by MLS Property Information Network, Inc. The property listing data and information are for the personal, non-commercial use of consumers having a good faith interest in purchasing or leasing listed properties of the type displayed to them and may not be used for any purpose other than to identify prospective properties which such consumers may have a good faith interest in purchasing or leasing. MLS Property Information Network, Inc. and its subscribers disclaim any and all representations and warranties as to the accuracy of the property listing data and information set forth herein.
A&S Realty, Inc and their agents make no warranties or representations as to the accuracy of this data, although good faith efforts have been made to ensure that the data displayed on this page is as accurate as possible. In certain cases listings are syndicated through another agency, management company, or through the MLS. A&S Realty, Inc is not responsible for the data that is displayed from a syndicate partner. Listings may no longer be available, pricing may be subject to change, and any photos or descriptions may be of a similar unit or from a previous year.