



































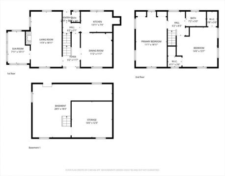
This two-bedroom colonial is well located in Wollaston, offering convenient access to the highway, Wollaston T Station, E. Milton, & nearby amenities. While listed as a two-bedroom home, the layout is spacious and includes a large living room with an adjoining sunroom. The basement includes a semi-finished room with a large window that could potentially serve as a third bedroom. A galley kitchen provides ample cabinet and counter space and is ready for customization. Adjacent to the kitchen, a dining room features a built-in hutch along with a convenient half bath. A door off the kitchen leads to the back deck, offering easy access to the yard for outdoor enjoyment. Upstairs, both bedrooms are generously sized and can comfortably accommodate king-sized beds and additional furniture. An updated full bathroom completes the second level. There is additional storage space in the basement. The heating system less than 10 years old. Located in a desirable neighborhood, this is a great value.
Open House: December 19th 12:00-1:30pm
| MLS Listing ID: | 73462784 |
|---|---|
| Listing Price: | $599,000 |
| Listing Status: | New [?] |
| Property Type: | Single Family |
| Style: | Colonial |
| Rooms: | 6 |
| Bedrooms: | 2 |
| Full Baths: | 1 |
| Half Baths: | 1 |
| Living Space: | 1200 sf. |
| Lot Size: | 0.12 acres (5027 sf.) |
| Parking: | Yes, Off-Street, Paved Driveway, Off-Street, Paved Driveway |
| Taxes: | $7,004.00 |
| Tax Year: | 2025 |
Listing Current as of December 18, 2025 7:00am
This listing brought to you by Austin Partain of William Raveis R.E. & Home Services.
The property listing data and information set forth herein were provided to MLS Property Information Network, Inc. from third party sources, including sellers, lessors and public records, and were compiled by MLS Property Information Network, Inc. The property listing data and information are for the personal, non-commercial use of consumers having a good faith interest in purchasing or leasing listed properties of the type displayed to them and may not be used for any purpose other than to identify prospective properties which such consumers may have a good faith interest in purchasing or leasing. MLS Property Information Network, Inc. and its subscribers disclaim any and all representations and warranties as to the accuracy of the property listing data and information set forth herein.
A&S Realty, Inc and their agents make no warranties or representations as to the accuracy of this data, although good faith efforts have been made to ensure that the data displayed on this page is as accurate as possible. In certain cases listings are syndicated through another agency, management company, or through the MLS. A&S Realty, Inc is not responsible for the data that is displayed from a syndicate partner. Listings may no longer be available, pricing may be subject to change, and any photos or descriptions may be of a similar unit or from a previous year.