



































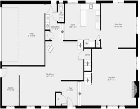
Welcome to this spacious multi-level home in the highly desirable Brooksby Farm neighborhood of Peabody. Offering 4 bedrooms and 3.5 baths, this home provides plenty of room for comfortable living and entertaining. The main living areas feature beautiful hardwood floors, adding warmth and character throughout. The lower level offers in-law or extended living potential, making it a great option for multi-generational living or guest space. Recent updates include a brand-new heating system and hot water heater, providing added efficiency and peace of mind. Situated on just under half an acre, the property provides generous outdoor space with endless possibilities for gardening, recreation, or future enhancements. With solid bones, a desirable location, and room to personalize, this home is full of opportunity for the next owner. OPEN HOUSE 3/14 and 3/15 11:00-12:30PM.
Open House: March 14th 11:00-12:30pm
| MLS Listing ID: | 73485713 |
|---|---|
| Listing Price: | $724,900 |
| Listing Status: | New [?] |
| Property Type: | Single Family |
| Style: | Colonial, Multi-Level, Colonial, Multi-Level |
| Rooms: | 9 |
| Bedrooms: | 4 |
| Full Baths: | 3 |
| Half Baths: | 1 |
| Living Space: | 2664 sf. |
| Lot Size: | 0.44 acres (19349 sf.) |
| Parking: | Yes, Off-Street, Paved Driveway, Off-Street, Paved Driveway |
| Taxes: | $7,029.00 |
| Tax Year: | 2025 |
Listing Current as of March 13, 2026 11:00pm
This listing brought to you by Louise Touchette Team of Coldwell Banker Realty - Lynnfield.
The property listing data and information set forth herein were provided to MLS Property Information Network, Inc. from third party sources, including sellers, lessors and public records, and were compiled by MLS Property Information Network, Inc. The property listing data and information are for the personal, non-commercial use of consumers having a good faith interest in purchasing or leasing listed properties of the type displayed to them and may not be used for any purpose other than to identify prospective properties which such consumers may have a good faith interest in purchasing or leasing. MLS Property Information Network, Inc. and its subscribers disclaim any and all representations and warranties as to the accuracy of the property listing data and information set forth herein.
A&S Realty, Inc and their agents make no warranties or representations as to the accuracy of this data, although good faith efforts have been made to ensure that the data displayed on this page is as accurate as possible. In certain cases listings are syndicated through another agency, management company, or through the MLS. A&S Realty, Inc is not responsible for the data that is displayed from a syndicate partner. Listings may no longer be available, pricing may be subject to change, and any photos or descriptions may be of a similar unit or from a previous year.