



































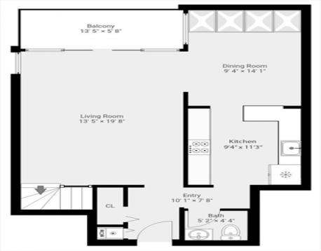
Cedar Pond Village! Beautiful Two-story townhouse style condo w/2 bed/2.5 baths! All of the bathrooms have been redone beautifully in the last couple of years. The kitchen features granite counters, with some stainless appliances & opens nicely into the airy dining area with cathedral ceilings and skylights. The spacious tiled living room has sliders that open to the private balcony. An updated & modern 1/2 bath completes the first floor. Upstairs you will find 2 bedrooms including a primary bedroom w/ remodeled ensuite & another newly updated full bathroom. You will love the convenient second floor laundry! Plenty of closet space throughout! Two deeded parking spaces! Carport covered parking (#116) w/storage & (#97) exterior parking! Close to major routes but yet nestled in the woods! Enjoy the outdoor pool, tennis court, & clubroom. This beautiful unit shows pride of ownership & is just waiting for its new owner! Mailing address is Lynnfield but taxes, schools & electric are Peabody!
| MLS Listing ID: | 73453132 |
|---|---|
| Listing Price: | $539,900 |
| Listing Status: | Active [?] |
| Property Type: | Condo |
| Style: | Townhouse |
| Rooms: | 5 |
| Bedrooms: | 2 |
| Full Baths: | 2 |
| Half Baths: | 1 |
| Living Space: | 1268 sf. |
| Lot Size: | - |
| Parking: | Yes |
| Taxes: | $4,131.00 |
| Tax Year: | 2025 |
| Association Fees: | $724.00 |
Listing Current as of December 25, 2025 7:00pm
This listing brought to you by Kristin Gennetti of Century 21 North East.
The property listing data and information set forth herein were provided to MLS Property Information Network, Inc. from third party sources, including sellers, lessors and public records, and were compiled by MLS Property Information Network, Inc. The property listing data and information are for the personal, non-commercial use of consumers having a good faith interest in purchasing or leasing listed properties of the type displayed to them and may not be used for any purpose other than to identify prospective properties which such consumers may have a good faith interest in purchasing or leasing. MLS Property Information Network, Inc. and its subscribers disclaim any and all representations and warranties as to the accuracy of the property listing data and information set forth herein.
A&S Realty, Inc and their agents make no warranties or representations as to the accuracy of this data, although good faith efforts have been made to ensure that the data displayed on this page is as accurate as possible. In certain cases listings are syndicated through another agency, management company, or through the MLS. A&S Realty, Inc is not responsible for the data that is displayed from a syndicate partner. Listings may no longer be available, pricing may be subject to change, and any photos or descriptions may be of a similar unit or from a previous year.