




























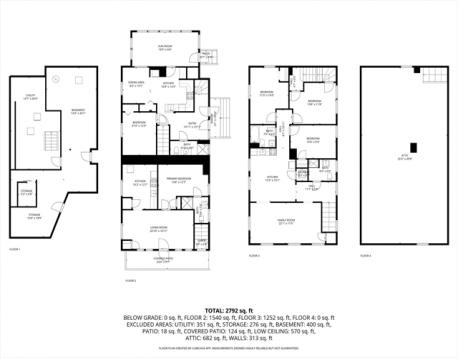
Become an homeowner AND investor! Extremely Rare 3 Family in the heart of North Reading. Only steps from Ryers, Flint Library, and Ipswich River Park, not to mention just a block from all 4 schools (Hilltop Nursery school, Batch elementary, Middle and High schools). This unicorn property is completely updated, laundry for each individual unit and has 6 off street parking spaces. Newer Heating and HW systems, new windows on second floor. Seller to install NEW septic system. Sale includes 2nd lot behind home (17,100sq ft) - lot not subdividable.
Open House: January 4th 11:00-12:30pm
| MLS Listing ID: | 73455946 |
|---|---|
| Listing Price: | $1,150,000 |
| Listing Status: | Active [?] |
| Property Type: | Single Family |
| Style: | Other (see Remarks) |
| Rooms: | 12 |
| Bedrooms: | 5 |
| Full Baths: | 3 |
| Half Baths: | 1 |
| Living Space: | 2925 sf. |
| Lot Size: | 0.3 acres (13155 sf.) |
| Parking: | - |
| Taxes: | $8,257.00 |
| Tax Year: | 2025 |
Listing Current as of January 03, 2026 12:00am
This listing brought to you by Shawn McEntee of Classified Realty Group.
The property listing data and information set forth herein were provided to MLS Property Information Network, Inc. from third party sources, including sellers, lessors and public records, and were compiled by MLS Property Information Network, Inc. The property listing data and information are for the personal, non-commercial use of consumers having a good faith interest in purchasing or leasing listed properties of the type displayed to them and may not be used for any purpose other than to identify prospective properties which such consumers may have a good faith interest in purchasing or leasing. MLS Property Information Network, Inc. and its subscribers disclaim any and all representations and warranties as to the accuracy of the property listing data and information set forth herein.
A&S Realty, Inc and their agents make no warranties or representations as to the accuracy of this data, although good faith efforts have been made to ensure that the data displayed on this page is as accurate as possible. In certain cases listings are syndicated through another agency, management company, or through the MLS. A&S Realty, Inc is not responsible for the data that is displayed from a syndicate partner. Listings may no longer be available, pricing may be subject to change, and any photos or descriptions may be of a similar unit or from a previous year.