























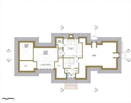
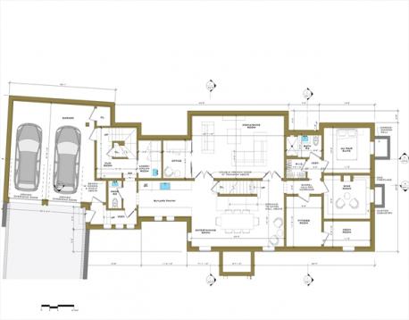
Create your dream home w/a distinguished architecture & interior design firm. An award-winning team offers a personalized, architect-led design/build process that prioritizes your vision, preferences & lifestyle.Experience seamless collaboration, reduced stress & full control from concept to completion that general contractors alone can't offer.Tucked away on a secluded st. in Newton’s prestigious Auburndale neighborhood, this 9,189 sq ft lot offers the perfect canvas for a truly extraordinary residence. Fully permitted plans are available for a stately 7,488 sq ft home featuring 6 bdrms, 7 baths, soaring double-height great room w/balcony overlooks, gracious foyer w/20' ceilings, library, butler’s pantry, au pair suite, spa-inspired primary suite & wine rm. Customize a layout & interior to match your vision w/timeless, traditional details, cozy farmhouse finishes, or luxury contemporary aesthetics!Enjoy local restaurants, golf courses, parks, trails & boating along the Charles River!
| MLS Listing ID: | 73440243 |
|---|---|
| Listing Price: | $5,200,000 |
| Listing Status: | Active [?] |
| Property Type: | Single Family |
| Style: | Italianate, Colonial, Italianate, Colonial |
| Bedrooms: | 6 |
| Full Baths: | 5 |
| Half Baths: | 2 |
| Living Space: | 7488 sf. |
| Lot Size: | 0.23 acres (9819 sf.) |
| Parking: | Yes |
| Taxes: | - |
Listing Current as of November 21, 2025 12:00am
This listing brought to you by Sheila Travi of Sheila Travi.
The property listing data and information set forth herein were provided to MLS Property Information Network, Inc. from third party sources, including sellers, lessors and public records, and were compiled by MLS Property Information Network, Inc. The property listing data and information are for the personal, non-commercial use of consumers having a good faith interest in purchasing or leasing listed properties of the type displayed to them and may not be used for any purpose other than to identify prospective properties which such consumers may have a good faith interest in purchasing or leasing. MLS Property Information Network, Inc. and its subscribers disclaim any and all representations and warranties as to the accuracy of the property listing data and information set forth herein.
A&S Realty, Inc and their agents make no warranties or representations as to the accuracy of this data, although good faith efforts have been made to ensure that the data displayed on this page is as accurate as possible. In certain cases listings are syndicated through another agency, management company, or through the MLS. A&S Realty, Inc is not responsible for the data that is displayed from a syndicate partner. Listings may no longer be available, pricing may be subject to change, and any photos or descriptions may be of a similar unit or from a previous year.