


































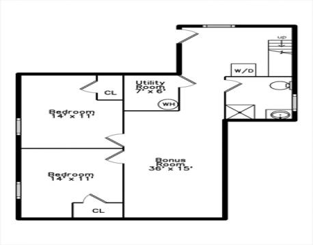
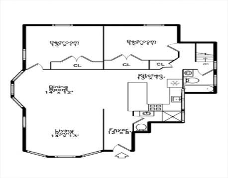
This lovely two-level condo offers space, flexibility, and modern comfort. Featuring four bedrooms—two on the upper level and two on the lower level—this thoughtfully designed layout accommodates a variety of living arrangements, including work-from-home, guest space, or multigenerational living. The entire unit was fully updated in 2019 and includes three full bathrooms, creating a truly move-in-ready home. Contemporary finishes, updated systems, and a functional floor plan enhance both privacy and natural flow across both levels. Additional highlights include, new roof in 2024, two off-street parking spaces, and a convenient location close to the Upper Falls Greenway, shopping, restaurants, highway access, and more! HOA includes water, fire alarm monitoring and phone line for fire panel, master insurance, annual gutter cleaning, and electrical for common areas. New roof 2024 and new fire escape 2022.
| MLS Listing ID: | 73469930 |
|---|---|
| Listing Price: | $849,900 |
| Listing Status: | Contingent [?] |
| Neighborhood: | Newton Upper Falls |
| Property Type: | Condo |
| Style: | Low-rise |
| Rooms: | 8 |
| Bedrooms: | 4 |
| Full Baths: | 3 |
| Half Baths: | 0 |
| Living Space: | 2190 sf. |
| Lot Size: | 0.11 acres (4969 sf.) |
| Parking: | Yes, Off-street |
| Taxes: | $8,013.00 |
| Tax Year: | 2025 |
| Association Fees: | $438.36 |
Listing Current as of February 11, 2026 8:00pm
This listing brought to you by Stephanie Sloan of Home Front Home Services.
The property listing data and information set forth herein were provided to MLS Property Information Network, Inc. from third party sources, including sellers, lessors and public records, and were compiled by MLS Property Information Network, Inc. The property listing data and information are for the personal, non-commercial use of consumers having a good faith interest in purchasing or leasing listed properties of the type displayed to them and may not be used for any purpose other than to identify prospective properties which such consumers may have a good faith interest in purchasing or leasing. MLS Property Information Network, Inc. and its subscribers disclaim any and all representations and warranties as to the accuracy of the property listing data and information set forth herein.
A&S Realty, Inc and their agents make no warranties or representations as to the accuracy of this data, although good faith efforts have been made to ensure that the data displayed on this page is as accurate as possible. In certain cases listings are syndicated through another agency, management company, or through the MLS. A&S Realty, Inc is not responsible for the data that is displayed from a syndicate partner. Listings may no longer be available, pricing may be subject to change, and any photos or descriptions may be of a similar unit or from a previous year.