

































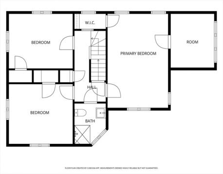
Classic Newton Corner Tudor maintaining original architectural details that beautifully reflect the home’s heritage, complemented by thoughtful modern updates. The first floor features a gorgeous living room with a wood-beamed ceiling, fireplace and gleaming hardwood inlay floors, a fully renovated kitchen with stainless steel appliances and tile flooring, inviting dining room and half bath complete the main level. Upstairs offers three generous bedrooms, updated bathroom featuring an easy access shower and marble floor. The primary suite includes a walk-in closet with diamond pane window and French doors opening to a private, sun-soaked sitting area. Upgrades completed in 2023 include replacement windows, irrigation system, central A/C, hydro heating, recessed lighting. Ample storage throughout with numerous closets, a full basement, and a large walk-up attic. A one-car garage adds everyday convenience. An iconic grasshopper weather vane crowns the home. Close to Mass Pike and park.
Open House: April 17th 12:00-1:30pm
| MLS Listing ID: | 73501467 |
|---|---|
| Listing Price: | $1,000,000 |
| Listing Status: | New [?] |
| Neighborhood: | Newton Corner |
| Property Type: | Single Family |
| Style: | Tudor |
| Rooms: | 7 |
| Bedrooms: | 3 |
| Full Baths: | 1 |
| Half Baths: | 1 |
| Living Space: | 1877 sf. |
| Lot Size: | 0.11 acres (4710 sf.) |
| Parking: | Yes |
| Taxes: | $9,699.00 |
| Tax Year: | 2025 |
Listing Current as of April 17, 2026 12:00am
This listing brought to you by Liz Lassen of Lassen Realty, LLC.
The property listing data and information set forth herein were provided to MLS Property Information Network, Inc. from third party sources, including sellers, lessors and public records, and were compiled by MLS Property Information Network, Inc. The property listing data and information are for the personal, non-commercial use of consumers having a good faith interest in purchasing or leasing listed properties of the type displayed to them and may not be used for any purpose other than to identify prospective properties which such consumers may have a good faith interest in purchasing or leasing. MLS Property Information Network, Inc. and its subscribers disclaim any and all representations and warranties as to the accuracy of the property listing data and information set forth herein.
A&S Realty, Inc and their agents make no warranties or representations as to the accuracy of this data, although good faith efforts have been made to ensure that the data displayed on this page is as accurate as possible. In certain cases listings are syndicated through another agency, management company, or through the MLS. A&S Realty, Inc is not responsible for the data that is displayed from a syndicate partner. Listings may no longer be available, pricing may be subject to change, and any photos or descriptions may be of a similar unit or from a previous year.