





























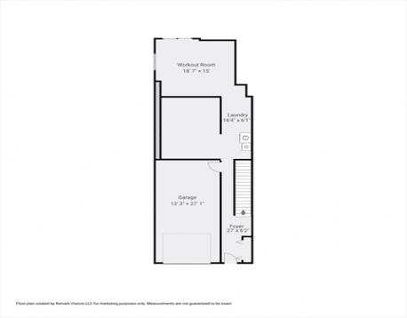
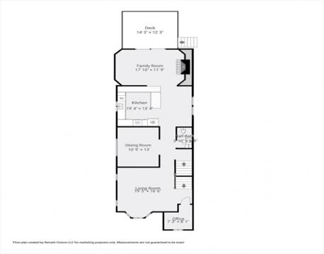
Built in 1996 this 3 level home abutting the Bay Colony Rail Trail has a very flexible floor plan for the living level. Sitting room off of the kitchen has a wood burning fireplace & Deck with sweeping woodsy views. First floor has garage, workshop, den (exercise room) and laundry, 2nd floor has open kitchen and family room. Kitchen has a great layout, plenty of granite countertops with peninsula for breakfast bar seating. Flexible floor plan allows for different uses of the living level. Living room has bay window and small office. 3rd floor has primary bedroom suite with double closets and a 5- piece bath with soaking tub, shower and 2 vanities. There are 2 more bedrooms and full bath. Pull down ladder for attic storage. Garage with interior access. Large yard stretches along the bay state rail trail. Fabulous setting back from the road. 6 minute drive to Needham Junction for commuter rail.
Open House: April 4th 12:00-1:30pm
| MLS Listing ID: | 73444631 |
|---|---|
| Listing Price: | $949,000 |
| Listing Status: | Back on Market [?] |
| Property Type: | Single Family |
| Style: | Colonial |
| Rooms: | 7 |
| Bedrooms: | 3 |
| Full Baths: | 2 |
| Half Baths: | 1 |
| Living Space: | 2150 sf. |
| Lot Size: | 0.91 acres (39640 sf.) |
| Parking: | Yes, Off-Street, Paved Driveway, Off-Street, Paved Driveway |
| Taxes: | $10,137.00 |
| Tax Year: | 2025 |
Listing Current as of April 01, 2026 10:00am
This listing brought to you by Mary M. Wallace of Gibson Sotheby's International Realty.
The property listing data and information set forth herein were provided to MLS Property Information Network, Inc. from third party sources, including sellers, lessors and public records, and were compiled by MLS Property Information Network, Inc. The property listing data and information are for the personal, non-commercial use of consumers having a good faith interest in purchasing or leasing listed properties of the type displayed to them and may not be used for any purpose other than to identify prospective properties which such consumers may have a good faith interest in purchasing or leasing. MLS Property Information Network, Inc. and its subscribers disclaim any and all representations and warranties as to the accuracy of the property listing data and information set forth herein.
A&S Realty, Inc and their agents make no warranties or representations as to the accuracy of this data, although good faith efforts have been made to ensure that the data displayed on this page is as accurate as possible. In certain cases listings are syndicated through another agency, management company, or through the MLS. A&S Realty, Inc is not responsible for the data that is displayed from a syndicate partner. Listings may no longer be available, pricing may be subject to change, and any photos or descriptions may be of a similar unit or from a previous year.