


































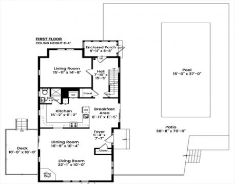
You found it! The trifecta: plenty of space indoors and outdoors; proximity to all amenities; and a fabulous neighborhood. Boasting plenty of character as it's a rejuvenated carriage house with a bright, sun filled 2 story addition delivering a generous first floor 400 sqft family/dining room combo with wood burning stove while the 2nd floor primary en suite offers a private escape. The lower level adds two additional rooms, a full bath and abundant storage giving everyone the space they need. But it's the setting that truly sets it apart. Tucked behind a canopy of mature trees with a pool, hot tub, and patio, this lot offers the kind of breathing room that's nearly impossible to find this close to everything. From your backyard kids can sled in the winter and swim in the summer. All of this within a mile to the Commuter Rail, restaurants, Neponset Bike Trail and more. Some homes are just that house, a yard full of kids and a setting so private you forget you're this close to it all!
Open House: April 11th 11:00-12:30pm
| MLS Listing ID: | 73497760 |
|---|---|
| Listing Price: | $1,350,000 |
| Listing Status: | New [?] |
| Property Type: | Single Family |
| Style: | Colonial |
| Rooms: | 10 |
| Bedrooms: | 4 |
| Full Baths: | 4 |
| Living Space: | 3003 sf. |
| Lot Size: | 0.92 acres (40271 sf.) |
| Parking: | Yes, Off-street |
| Taxes: | $10,177.00 |
| Tax Year: | 2025 |
Listing Current as of April 10, 2026 11:00am
This listing brought to you by Cahill+Co. Team of William Raveis R.E. & Home Services.
The property listing data and information set forth herein were provided to MLS Property Information Network, Inc. from third party sources, including sellers, lessors and public records, and were compiled by MLS Property Information Network, Inc. The property listing data and information are for the personal, non-commercial use of consumers having a good faith interest in purchasing or leasing listed properties of the type displayed to them and may not be used for any purpose other than to identify prospective properties which such consumers may have a good faith interest in purchasing or leasing. MLS Property Information Network, Inc. and its subscribers disclaim any and all representations and warranties as to the accuracy of the property listing data and information set forth herein.
A&S Realty, Inc and their agents make no warranties or representations as to the accuracy of this data, although good faith efforts have been made to ensure that the data displayed on this page is as accurate as possible. In certain cases listings are syndicated through another agency, management company, or through the MLS. A&S Realty, Inc is not responsible for the data that is displayed from a syndicate partner. Listings may no longer be available, pricing may be subject to change, and any photos or descriptions may be of a similar unit or from a previous year.