


































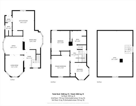
Dreaming of a Melrose Victorian with stained glass and an updated kitchen? Something you’d be proud to show off to your friends? Walkable to downtown and the Fells? A fenced-in yard for your dog? This home checks every Melrose box. Spend warm nights with a drink on your front porch, then step into a warm, inviting foyer that instantly feels like home. With high ceilings and original woodwork, the space feels effortlessly regal. No more yelling at your family to get out of the kitchen while you cook—there’s plenty of seating for them to admire your perfect chopping skills. A bathroom and mudroom complete the first floor. Three bedrooms and a large full bathroom complete the second floor, while the third floor offers expansion potential. Nothing to do but move in and watch your beautiful Japanese Maple bloom! Enjoy a level, fenced-in yard with a patio off the kitchen, a freshly painted interior, and tons of storage in the basement. All set in an adorable, commuter friendly neighborhood!
Open House: April 6th 4:30-5:30pm
| MLS Listing ID: | 73494859 |
|---|---|
| Listing Price: | $889,900 |
| Listing Status: | New [?] |
| Neighborhood: | Wyoming |
| Property Type: | Single Family |
| Style: | Victorian |
| Rooms: | 6 |
| Bedrooms: | 3 |
| Full Baths: | 1 |
| Half Baths: | 1 |
| Living Space: | 1644 sf. |
| Lot Size: | 0.09 acres (4138 sf.) |
| Parking: | Yes, Off-street |
| Taxes: | $8,543.00 |
| Tax Year: | 2025 |
Listing Current as of April 05, 2026 6:00am
This listing brought to you by Lauren Maguire of Leading Edge Real Estate.
The property listing data and information set forth herein were provided to MLS Property Information Network, Inc. from third party sources, including sellers, lessors and public records, and were compiled by MLS Property Information Network, Inc. The property listing data and information are for the personal, non-commercial use of consumers having a good faith interest in purchasing or leasing listed properties of the type displayed to them and may not be used for any purpose other than to identify prospective properties which such consumers may have a good faith interest in purchasing or leasing. MLS Property Information Network, Inc. and its subscribers disclaim any and all representations and warranties as to the accuracy of the property listing data and information set forth herein.
A&S Realty, Inc and their agents make no warranties or representations as to the accuracy of this data, although good faith efforts have been made to ensure that the data displayed on this page is as accurate as possible. In certain cases listings are syndicated through another agency, management company, or through the MLS. A&S Realty, Inc is not responsible for the data that is displayed from a syndicate partner. Listings may no longer be available, pricing may be subject to change, and any photos or descriptions may be of a similar unit or from a previous year.