





















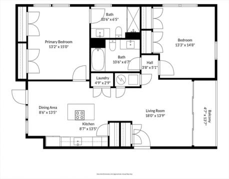
Welcome to The Doherty West Medford, where contemporary design meets modern convenience. This boutique 9-unit condominium complex offers thoughtfully designed residences with stylish finishes throughout. This exceptional ground-level 2-bedroom, 2-bath home features a private patio and its own private exterior entrance leading directly to one deeded parking space. The sleek kitchen is outfitted with gray cabinetry, an elegant hexagon tile backsplash, Samsung appliances including a touchscreen refrigerator, and a center island with an induction cooktop and sophisticated hanging hood. A ground-level café adds everyday convenience right outside your door. Ideally located just 0.1 miles from the West Medford MBTA station, this home offers easy access to public transportation, local restaurants, shops, and parks. With major routes nearby, commuting to Boston and surrounding communities is simple. Nearby amenities also include the Middlesex Fells Reservation and Tufts University.
Open House: April 5th 10:00-11:30am
| MLS Listing ID: | 73495174 |
|---|---|
| Listing Price: | $839,000 |
| Listing Status: | New [?] |
| Neighborhood: | West Medford |
| Property Type: | Condo |
| Style: | Mid-rise |
| Rooms: | 7 |
| Bedrooms: | 2 |
| Full Baths: | 2 |
| Living Space: | 1146 sf. |
| Lot Size: | - |
| Parking: | Yes, Off-Street, Paved Driveway, Off-Street, Paved Driveway |
| Taxes: | - |
| Association Fees: | $600.00 |
Listing Current as of April 05, 2026 6:00am
This listing brought to you by The Sarkis Team of Douglas Elliman Real Estate - The Sarkis Team.
The property listing data and information set forth herein were provided to MLS Property Information Network, Inc. from third party sources, including sellers, lessors and public records, and were compiled by MLS Property Information Network, Inc. The property listing data and information are for the personal, non-commercial use of consumers having a good faith interest in purchasing or leasing listed properties of the type displayed to them and may not be used for any purpose other than to identify prospective properties which such consumers may have a good faith interest in purchasing or leasing. MLS Property Information Network, Inc. and its subscribers disclaim any and all representations and warranties as to the accuracy of the property listing data and information set forth herein.
A&S Realty, Inc and their agents make no warranties or representations as to the accuracy of this data, although good faith efforts have been made to ensure that the data displayed on this page is as accurate as possible. In certain cases listings are syndicated through another agency, management company, or through the MLS. A&S Realty, Inc is not responsible for the data that is displayed from a syndicate partner. Listings may no longer be available, pricing may be subject to change, and any photos or descriptions may be of a similar unit or from a previous year.