





























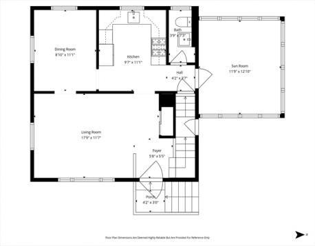
Move-in ready single-family home located in Malden’s desirable West End, just minutes from the Orange Line, bus routes, and commuter rail, offering exceptional convenience for commuting. The first floor features a functional layout with a living room, dining room, kitchen, and a half bathroom, along with a mini-split system for heating and cooling. An impressive oversized sunroom with stunning wall-to-wall windows fills the space with natural light and provides a perfect setting for relaxing or entertaining. The second floor offers three bedrooms and one full bathroom. Additional highlights include hardwood floors throughout, a one-car garage, and a basement with washer and dryer. Conveniently located near local shops, restaurants, and everyday amenities, with easy access to Assembly Row and downtown Boston.
Open House: April 25th 10:30-12:00pm
| MLS Listing ID: | 73504606 |
|---|---|
| Listing Price: | $725,000 |
| Listing Status: | New [?] |
| Property Type: | Single Family |
| Style: | Garrison |
| Rooms: | 6 |
| Bedrooms: | 3 |
| Full Baths: | 1 |
| Half Baths: | 1 |
| Living Space: | 1272 sf. |
| Lot Size: | 0.09 acres (3851 sf.) |
| Parking: | Yes |
| Taxes: | $7,034.00 |
| Tax Year: | 2025 |
Listing Current as of April 23, 2026 11:00pm
This listing brought to you by Cheng Liang of CWQ Realty Group LLC.
The property listing data and information set forth herein were provided to MLS Property Information Network, Inc. from third party sources, including sellers, lessors and public records, and were compiled by MLS Property Information Network, Inc. The property listing data and information are for the personal, non-commercial use of consumers having a good faith interest in purchasing or leasing listed properties of the type displayed to them and may not be used for any purpose other than to identify prospective properties which such consumers may have a good faith interest in purchasing or leasing. MLS Property Information Network, Inc. and its subscribers disclaim any and all representations and warranties as to the accuracy of the property listing data and information set forth herein.
A&S Realty, Inc and their agents make no warranties or representations as to the accuracy of this data, although good faith efforts have been made to ensure that the data displayed on this page is as accurate as possible. In certain cases listings are syndicated through another agency, management company, or through the MLS. A&S Realty, Inc is not responsible for the data that is displayed from a syndicate partner. Listings may no longer be available, pricing may be subject to change, and any photos or descriptions may be of a similar unit or from a previous year.