































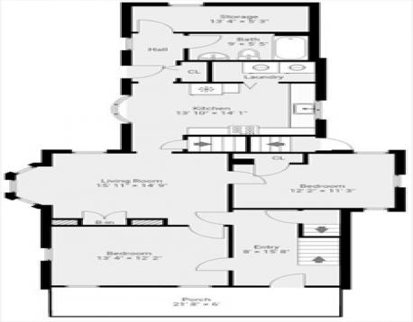
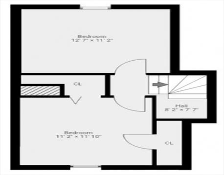
Be home for the holidays in the WEST END! Two family with three levels of living just 0.5 miles to Oak Grove & Malden MBTA! Sitting back off of the street, this home offers both old world charm, modern convenience & updates. You will love the high ceilings & versatile floor plan. The first floor is a 5 room 2 bed/1 bath unit. The second & third floors make up the second unit & are comprised of 7 rooms w/ 3 beds & 1 bath. Bathrooms were redone (2021), new garage door (2025), gas heating - new combi gas heat/hot water unit 2 (2023), updated electrical panels, (2024), roof (appx 2014), replacement windows, vinyl siding, in-unit laundry, first unit has an older gas furnace, & plenty of off-street parking. Unit 2 delivered vacant. Unit 1 delivered as tenanted. This home is great for the owner occupant or savvy investor! Enjoy hiking & biking on the Fells, eateries & breweries in Malden Center, Ameridge Park & Fellsmere Pond. This West End beauty is just waiting for your TLC!
Open House: November 15th 10:30-12:00pm
| MLS Listing ID: | 73454933 |
|---|---|
| Listing Price: | $929,900 |
| Listing Status: | New [?] |
| Neighborhood: | West End |
| Property Type: | Multi Family |
| Bedrooms: | 5 |
| Full Baths: | 2 |
| Living Space: | 2850 sf. |
| Lot Size: | 0.13 acres (5863 sf.) |
| Parking: | Yes |
| Taxes: | $9,181.00 |
| Tax Year: | 2025 |
Listing Current as of November 14, 2025 12:00pm
This listing brought to you by Kristin Gennetti of Century 21 North East.
The property listing data and information set forth herein were provided to MLS Property Information Network, Inc. from third party sources, including sellers, lessors and public records, and were compiled by MLS Property Information Network, Inc. The property listing data and information are for the personal, non-commercial use of consumers having a good faith interest in purchasing or leasing listed properties of the type displayed to them and may not be used for any purpose other than to identify prospective properties which such consumers may have a good faith interest in purchasing or leasing. MLS Property Information Network, Inc. and its subscribers disclaim any and all representations and warranties as to the accuracy of the property listing data and information set forth herein.
A&S Realty, Inc and their agents make no warranties or representations as to the accuracy of this data, although good faith efforts have been made to ensure that the data displayed on this page is as accurate as possible. In certain cases listings are syndicated through another agency, management company, or through the MLS. A&S Realty, Inc is not responsible for the data that is displayed from a syndicate partner. Listings may no longer be available, pricing may be subject to change, and any photos or descriptions may be of a similar unit or from a previous year.