






















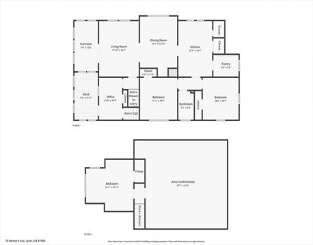
Rare opportunity to own a well-cared-for two-family home, proudly held by the same family for decades. Offering over 2,400 square feet of living space, this property features spacious layouts in both units, hardwood floors throughout, and great natural flow. The second unit offers a bonus room that could become a third bedroom or home office, an enclosed porch, and a walk-up partially finished third level, creating potential for a bi-level unit with added space and value. Additional highlights include separate entrances, a full basement with ample storage, a two-car garage, and plenty of off-street parking. Ideal for owner-occupants, investors, or multi-generational living, this property offers flexibility to fit a variety of needs. Conveniently located with easy access to major highways, public transportation, shopping, and dining, and just minutes to Boston, the MBTA, and local beaches. A prime chance to own a versatile multi-family in a highly accessible and growing Lynn market.
Open House: April 17th 11:00-1:00pm
| MLS Listing ID: | 73502565 |
|---|---|
| Listing Price: | $850,000 |
| Listing Status: | New [?] |
| Property Type: | Multi Family |
| Bedrooms: | 4 |
| Full Baths: | 2 |
| Living Space: | 2432 sf. |
| Lot Size: | 0.12 acres (5110 sf.) |
| Parking: | Yes |
| Taxes: | $9,013.00 |
| Tax Year: | 2025 |
Listing Current as of April 17, 2026 12:00am
This listing brought to you by Eric Bourgea of Reference Real Estate.
The property listing data and information set forth herein were provided to MLS Property Information Network, Inc. from third party sources, including sellers, lessors and public records, and were compiled by MLS Property Information Network, Inc. The property listing data and information are for the personal, non-commercial use of consumers having a good faith interest in purchasing or leasing listed properties of the type displayed to them and may not be used for any purpose other than to identify prospective properties which such consumers may have a good faith interest in purchasing or leasing. MLS Property Information Network, Inc. and its subscribers disclaim any and all representations and warranties as to the accuracy of the property listing data and information set forth herein.
A&S Realty, Inc and their agents make no warranties or representations as to the accuracy of this data, although good faith efforts have been made to ensure that the data displayed on this page is as accurate as possible. In certain cases listings are syndicated through another agency, management company, or through the MLS. A&S Realty, Inc is not responsible for the data that is displayed from a syndicate partner. Listings may no longer be available, pricing may be subject to change, and any photos or descriptions may be of a similar unit or from a previous year.