




















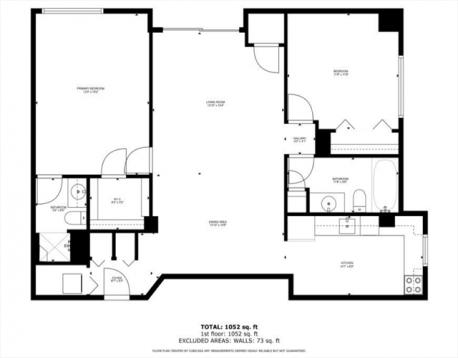
Welcome to the highly sought after Stadium Condominiums where comfort, space, and lifestyle come together. This beautifully renovated first floor corner unit offers exceptional privacy, natural light, and a highly functional layout. A welcoming entry foyer features three closets, including convenient in unit laundry. The expansive living and dining area provides outstanding flexibility for both everyday living and entertaining. A desirable California split bedroom design positions each bedroom on opposite sides of the unit, creating ideal separation and privacy. The spacious primary suite offers a generous walk-in closet and a well appointed ensuite bath with a walk-in shower. The second bedroom is equally sizable and features a large double door closet. Significant recent upgrades include a new heating system, new water heater, new windows, and a new sliding glass door, providing improved efficiency, comfort, and long-term peace of mind for the next owner. Schedule your showing today!
| MLS Listing ID: | 73492475 |
|---|---|
| Listing Price: | $419,900 |
| Listing Status: | Active [?] |
| Property Type: | Condo |
| Style: | Mid-rise |
| Rooms: | 4 |
| Bedrooms: | 2 |
| Full Baths: | 2 |
| Living Space: | 1056 sf. |
| Lot Size: | - |
| Parking: | Yes, Assigned, Deeded, Assigned, Deeded |
| Taxes: | $3,597.00 |
| Tax Year: | 2025 |
| Association Fees: | $456.00 |
Listing Current as of April 01, 2026 10:00am
This listing brought to you by Edwin Romero of eXp Realty.
The property listing data and information set forth herein were provided to MLS Property Information Network, Inc. from third party sources, including sellers, lessors and public records, and were compiled by MLS Property Information Network, Inc. The property listing data and information are for the personal, non-commercial use of consumers having a good faith interest in purchasing or leasing listed properties of the type displayed to them and may not be used for any purpose other than to identify prospective properties which such consumers may have a good faith interest in purchasing or leasing. MLS Property Information Network, Inc. and its subscribers disclaim any and all representations and warranties as to the accuracy of the property listing data and information set forth herein.
A&S Realty, Inc and their agents make no warranties or representations as to the accuracy of this data, although good faith efforts have been made to ensure that the data displayed on this page is as accurate as possible. In certain cases listings are syndicated through another agency, management company, or through the MLS. A&S Realty, Inc is not responsible for the data that is displayed from a syndicate partner. Listings may no longer be available, pricing may be subject to change, and any photos or descriptions may be of a similar unit or from a previous year.