




















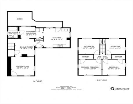
Of the 10 condos For Sale in Dedham, this 2-level home has the most to offer!! At an affordable price! It’s a great single-family alternative that has been loved by 1 family for 2 decades! FIRST FLOOR offers formal living and dining rooms, full bath w vaulted ceilings, laundry room with sliders to your large deck overlooking the GRASS YARD! SECOND FLOOR offers 4 good sized bedrooms- each with lots of light! 1 bedroom has a mini split for heating & cooling across this floor. Move right in or add instant equity w some MINOR edits- paint kitchen cabinets if cherry isn’t your favorite, add an island and/or change flooring if carpet isn’t your 1st choice. True to the era, the floors slope a tad and stairs are a bit steep. SELLER OFFERING 5K credit towards buyers' closing costs to close in November! 2 side-by-side parking spaces, lots of private basement storage, and a 5-unit, self-managed condo association. Tucked in a quiet spot walkable to Dedham Square & Rt 1 malls & bus routes.
| MLS Listing ID: | 73441081 |
|---|---|
| Listing Price: | $489,000 |
| Listing Status: | Active [?] |
| Property Type: | Single Family |
| Style: | Antique |
| Rooms: | 8 |
| Bedrooms: | 4 |
| Full Baths: | 1 |
| Living Space: | 1181 sf. |
| Lot Size: | 0.02 acres (999 sf.) |
| Parking: | Yes, Off-street |
| Taxes: | $3,766.00 |
| Tax Year: | 2025 |
Listing Current as of November 24, 2025 12:00pm
This listing brought to you by Michaela Hellman of Redfin Corp..
The property listing data and information set forth herein were provided to MLS Property Information Network, Inc. from third party sources, including sellers, lessors and public records, and were compiled by MLS Property Information Network, Inc. The property listing data and information are for the personal, non-commercial use of consumers having a good faith interest in purchasing or leasing listed properties of the type displayed to them and may not be used for any purpose other than to identify prospective properties which such consumers may have a good faith interest in purchasing or leasing. MLS Property Information Network, Inc. and its subscribers disclaim any and all representations and warranties as to the accuracy of the property listing data and information set forth herein.
A&S Realty, Inc and their agents make no warranties or representations as to the accuracy of this data, although good faith efforts have been made to ensure that the data displayed on this page is as accurate as possible. In certain cases listings are syndicated through another agency, management company, or through the MLS. A&S Realty, Inc is not responsible for the data that is displayed from a syndicate partner. Listings may no longer be available, pricing may be subject to change, and any photos or descriptions may be of a similar unit or from a previous year.