





























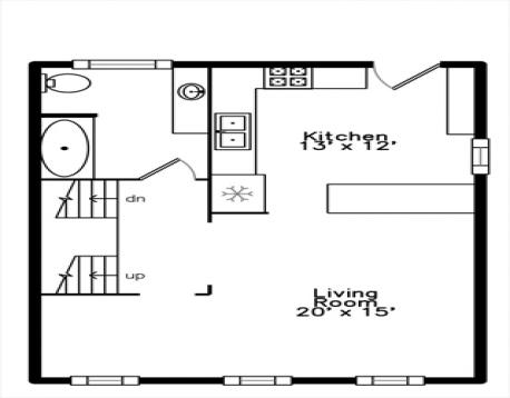
This lovely single family with in-law unit space has been owned and well maintained by the same family for three generations! Located on the quieter end of Webster Ave Chelsea, the lot provides four (4) paved off street parking spaces and has yard space in rear to allow owners ability to enjoy a back yard BBQ or relaxation in the sun. The ground level in-law unit is split between two levels with kitchen, living full bath and bedroom with half bath/ & washer/dryer on top level. Lower level has finished area two separate rooms and a full bath along with the utility room towards rear. Second unit is also comprised of two (2) levels with kitchen, living and full bath on entry, with two large bedrooms each with walk in closets on third floor. Second level is occupied with a tenant with lease ending in August 2026.
Open House: April 11th 12:00-1:30pm
| MLS Listing ID: | 73497109 |
|---|---|
| Listing Price: | $869,900 |
| Listing Status: | New [?] |
| Property Type: | Single Family |
| Style: | Colonial |
| Rooms: | 10 |
| Bedrooms: | 5 |
| Full Baths: | 3 |
| Half Baths: | 1 |
| Living Space: | 2885 sf. |
| Lot Size: | 0.11 acres (5000 sf.) |
| Parking: | Yes, Off-street |
| Taxes: | $7,101.00 |
| Tax Year: | 2025 |
Listing Current as of April 10, 2026 11:00am
This listing brought to you by Roy Avellaneda of ERA Metropolitan Homes.
The property listing data and information set forth herein were provided to MLS Property Information Network, Inc. from third party sources, including sellers, lessors and public records, and were compiled by MLS Property Information Network, Inc. The property listing data and information are for the personal, non-commercial use of consumers having a good faith interest in purchasing or leasing listed properties of the type displayed to them and may not be used for any purpose other than to identify prospective properties which such consumers may have a good faith interest in purchasing or leasing. MLS Property Information Network, Inc. and its subscribers disclaim any and all representations and warranties as to the accuracy of the property listing data and information set forth herein.
A&S Realty, Inc and their agents make no warranties or representations as to the accuracy of this data, although good faith efforts have been made to ensure that the data displayed on this page is as accurate as possible. In certain cases listings are syndicated through another agency, management company, or through the MLS. A&S Realty, Inc is not responsible for the data that is displayed from a syndicate partner. Listings may no longer be available, pricing may be subject to change, and any photos or descriptions may be of a similar unit or from a previous year.