





























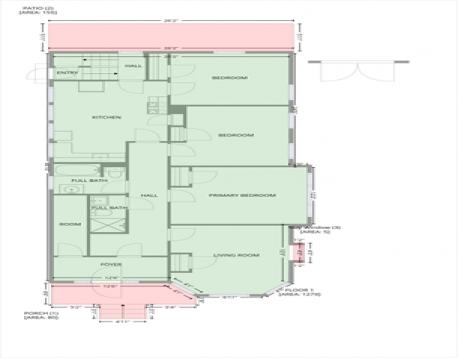
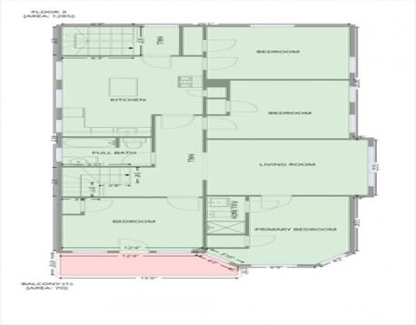
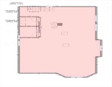
Buyer Financing fell throug! two-family home featuring 7 bedrooms, 4 full bathrooms, a driveway, garage, and a cozy backyard. This property offers newer electrical systems, kitchens, and baths, hardwood floors, high ceilings, and gas heat and cooking. The large, dry basement includes separate laundry rooms for each unit. Conveniently located near Downtown Chelsea with easy access to Boston via the Silver Line, Commuter Rail, and multiple bus routes. Enjoy proximity to Katz Bagels, John’s Pizza, and local dining spots. Fully rented with $7,300/month in gross income from TAW Section 8 leases. Ideal for investors or a 1031 tax exchange before year-end. Will have one group showing a week until we are under agreement. Mid Week, MID Day. DAY/TIME TBD and will post this as an open house and a Broker TOUR. THE SELLER'S WOULD PREFER TO SELL 100% RENTED, WHICH REQUIRES 20% DOWN PAYMENT. PLEASE SEE VIDEO AND FLOORPLANS. THE FLOOR PLANS SHOW A STAIRCASE INSTEAD OF A SECOND BATHROOOM W A SHOWER!!!
| MLS Listing ID: | 73443279 |
|---|---|
| Listing Price: | $850,000 |
| Listing Status: | Back on Market [?] |
| Property Type: | Multi Family |
| Bedrooms: | 7 |
| Full Baths: | 4 |
| Living Space: | 2718 sf. |
| Lot Size: | 0.08 acres (3291 sf.) |
| Parking: | Yes |
| Taxes: | $9,397.00 |
| Tax Year: | 2025 |
Listing Current as of December 09, 2025 10:00pm
This listing brought to you by Jeffrey Bowen of eRealty Advisors, Inc..
The property listing data and information set forth herein were provided to MLS Property Information Network, Inc. from third party sources, including sellers, lessors and public records, and were compiled by MLS Property Information Network, Inc. The property listing data and information are for the personal, non-commercial use of consumers having a good faith interest in purchasing or leasing listed properties of the type displayed to them and may not be used for any purpose other than to identify prospective properties which such consumers may have a good faith interest in purchasing or leasing. MLS Property Information Network, Inc. and its subscribers disclaim any and all representations and warranties as to the accuracy of the property listing data and information set forth herein.
A&S Realty, Inc and their agents make no warranties or representations as to the accuracy of this data, although good faith efforts have been made to ensure that the data displayed on this page is as accurate as possible. In certain cases listings are syndicated through another agency, management company, or through the MLS. A&S Realty, Inc is not responsible for the data that is displayed from a syndicate partner. Listings may no longer be available, pricing may be subject to change, and any photos or descriptions may be of a similar unit or from a previous year.