



































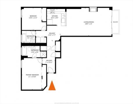
WATERFRONT HOME IN CAMBRIDGE at "Thomas Graves' Landing Condominium" (TGL at 4-6 Canal Park) ---2 BR 2 BA on 7th floor. Living Room with FIREPLACE & TERRACE with Spectacular Views of Boston Skyline, Charles River, Lechmere Canal, Perfect spot for your DAILY SUNSET & 4th OF JULY FIREWORKS! ---FLOOR THROUGH LAYOUT 2 EXPOSURES: SouthWest & NorthEast. ---1 DEEDED GARAGE & Guest Parking (First come first served basis) & 1 ASSIGNED STORAGE. ---Lots of light throughout the day from WINDOWS IN ALL ROOMS including both bathrooms, Great Closet Space, Nice Entry Hall/Foyer, Crown Molding, Recessed Lighting, Bamboo Floor, Open Kitchen with Stainless Steel Appliances, Backsplash & Light Pendants, Renovated Baths, En-Suite Bath with separate shower & Jacuzzi Tub, Custom Closets in both Bedrooms, Full Size Washer/Dryer in Unit. ---MONTHLY CONDO FEE INCLUDES: Water, Hot Water, COOKING GAS, Guest Parking, Gym, SAUNA, Pool, Jacuzzi Hot Tub, FUNCTION ROOM, 24Hrs CONCIERGE, Management On-Site & More.
| MLS Listing ID: | 73495318 |
|---|---|
| Listing Price: | $1,495,000 |
| Listing Status: | Contingent [?] |
| Property Type: | Condo |
| Style: | Mid-rise |
| Rooms: | 4 |
| Bedrooms: | 2 |
| Full Baths: | 2 |
| Living Space: | 1261 sf. |
| Lot Size: | 0.03 acres (1261 sf.) |
| Parking: | Yes, Off-Street, Common, Guest, Paved Driveway, Off-Street, Common, Guest, Paved Driveway |
| Taxes: | $9,121.34 |
| Tax Year: | 2026 |
| Association Fees: | $1161.39 |
Listing Current as of May 20, 2026 5:00pm
This listing brought to you by Amy Henderson & Jason Marcouillier of Gibson Sotheby's International Realty.
The property listing data and information set forth herein were provided to MLS Property Information Network, Inc. from third party sources, including sellers, lessors and public records, and were compiled by MLS Property Information Network, Inc. The property listing data and information are for the personal, non-commercial use of consumers having a good faith interest in purchasing or leasing listed properties of the type displayed to them and may not be used for any purpose other than to identify prospective properties which such consumers may have a good faith interest in purchasing or leasing. MLS Property Information Network, Inc. and its subscribers disclaim any and all representations and warranties as to the accuracy of the property listing data and information set forth herein.
A&S Realty, Inc and their agents make no warranties or representations as to the accuracy of this data, although good faith efforts have been made to ensure that the data displayed on this page is as accurate as possible. In certain cases listings are syndicated through another agency, management company, or through the MLS. A&S Realty, Inc is not responsible for the data that is displayed from a syndicate partner. Listings may no longer be available, pricing may be subject to change, and any photos or descriptions may be of a similar unit or from a previous year.