

































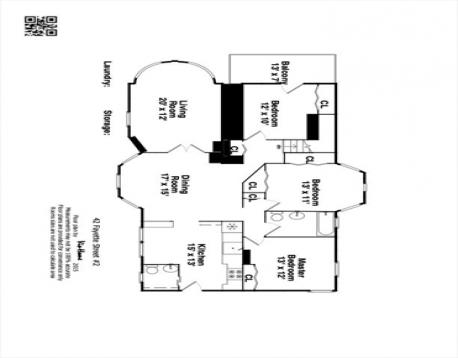
Rare 3-family offering in the heart of Mid-Cambridge. Nestled on a charming one-way, tree-lined street between Central & Inman Sq, this property features three apartments, common laundry & private storage rooms in the basement. Highlights include hardwood floors, HVAC, tree-top views & architecturally unique spaces. Enjoy a shared patio/yard area adorned with a garden, rose bushes & abundant flora. The gravel driveway leads to 2 separate side-by-side parking spaces. The 1st floor offers a 2-bed, 1.5-bath unit. The 2nd floor is a 3-bed, 1.5-bath unit with a street-facing balcony/deck. The 3rd floor is a 2-bed, 1-bath unit with vaulted ceilings. Each unit boasts great flow & open spaces, with Units 1 featuring a beautiful fireplace. Total gross rent is ~$13k per month! Lovingly & meticulously maintained over the decades, this property reflects the best of Cambridge living & demonstrates true pride of ownership. Ideal for the next investor or owner-occupant. Come see for yourself!
Open House: April 24th 5:00-7:00pm
| MLS Listing ID: | 73504415 |
|---|---|
| Listing Price: | $3,250,000 |
| Listing Status: | New [?] |
| Property Type: | Multi Family |
| Bedrooms: | 7 |
| Full Baths: | 3 |
| Half Baths: | 2 |
| Living Space: | 4372 sf. |
| Lot Size: | 0.12 acres (5127 sf.) |
| Parking: | Yes |
| Taxes: | $20,644.00 |
| Tax Year: | 2025 |
Listing Current as of April 23, 2026 11:00pm
This listing brought to you by Jeffrey Stephens of Compass.
The property listing data and information set forth herein were provided to MLS Property Information Network, Inc. from third party sources, including sellers, lessors and public records, and were compiled by MLS Property Information Network, Inc. The property listing data and information are for the personal, non-commercial use of consumers having a good faith interest in purchasing or leasing listed properties of the type displayed to them and may not be used for any purpose other than to identify prospective properties which such consumers may have a good faith interest in purchasing or leasing. MLS Property Information Network, Inc. and its subscribers disclaim any and all representations and warranties as to the accuracy of the property listing data and information set forth herein.
A&S Realty, Inc and their agents make no warranties or representations as to the accuracy of this data, although good faith efforts have been made to ensure that the data displayed on this page is as accurate as possible. In certain cases listings are syndicated through another agency, management company, or through the MLS. A&S Realty, Inc is not responsible for the data that is displayed from a syndicate partner. Listings may no longer be available, pricing may be subject to change, and any photos or descriptions may be of a similar unit or from a previous year.