










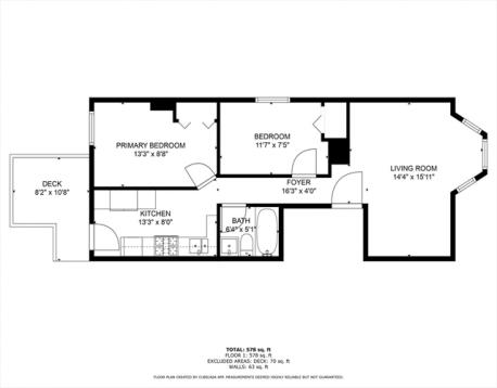
Discover the allure of this sunlit penthouse with two spacious bedrooms in a charming brick building near Central Square. The kitchen combines style and functionality with granite countertops, stainless steel appliances, and a convenient desk nook. Enjoy your private deck, ideal for outdoor dining and relaxation. The spacious living area offers a separate dining space, complemented by warm maple flooring throughout. The bathroom features contemporary tile flooring and a glass-enclosed tub. Additional conveniences include a deeded parking space (#7) and in-unit laundry. Ideally located near Central Square, MIT, public transit, restaurants, and shops, this penthouse combines classic Cambridge charm with modern comforts.
| MLS Listing ID: | 73485497 |
|---|---|
| Listing Price: | $634,900 |
| Listing Status: | Back on Market [?] |
| Neighborhood: | Cambridgeport |
| Property Type: | Condo |
| Style: | Detached |
| Rooms: | 4 |
| Bedrooms: | 2 |
| Full Baths: | 1 |
| Living Space: | 590 sf. |
| Lot Size: | - |
| Parking: | Yes |
| Taxes: | $3,082.00 |
| Tax Year: | 2025 |
| Association Fees: | $523.03 |
Listing Current as of April 28, 2026 12:00am
This listing brought to you by Aranson Maguire Group of Compass.
The property listing data and information set forth herein were provided to MLS Property Information Network, Inc. from third party sources, including sellers, lessors and public records, and were compiled by MLS Property Information Network, Inc. The property listing data and information are for the personal, non-commercial use of consumers having a good faith interest in purchasing or leasing listed properties of the type displayed to them and may not be used for any purpose other than to identify prospective properties which such consumers may have a good faith interest in purchasing or leasing. MLS Property Information Network, Inc. and its subscribers disclaim any and all representations and warranties as to the accuracy of the property listing data and information set forth herein.
A&S Realty, Inc and their agents make no warranties or representations as to the accuracy of this data, although good faith efforts have been made to ensure that the data displayed on this page is as accurate as possible. In certain cases listings are syndicated through another agency, management company, or through the MLS. A&S Realty, Inc is not responsible for the data that is displayed from a syndicate partner. Listings may no longer be available, pricing may be subject to change, and any photos or descriptions may be of a similar unit or from a previous year.