













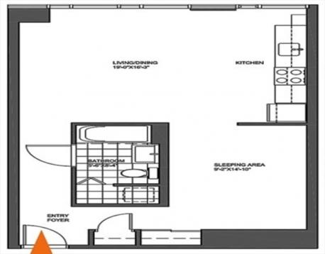
An opportunity not to be missed in the heart of Cambridge Crossing! The place to be in Cambridge with easy access to a plethora of shopping and dining options as well as convenient access to public transit, bike paths, walking trails, and outdoor park spaces. This junior one bedroom lives spaciously with a full wall of floor-to-ceiling windows overlooking the North Point park. Beautiful all times of the years, spring blooms, summer greenery, fall colors, and winter beauty. Efficient kitchen with white cabinets, granite countertops, and stainless steel appliances. The bathroom features a tiled bath/shower combination. Laundry is in the unit. The Tango building, part of the Sierra Tango Residences features 24-hour concierge. There is professional on-site property management. Garage parking off-site at Water street garage is included with the sale. This home has been freshly painted and is ready to occupy! A must see, priced to sell!
| MLS Listing ID: | 73440649 |
|---|---|
| Listing Price: | $649,000 |
| Listing Status: | Active [?] |
| Neighborhood: | East Cambridge |
| Property Type: | Condo |
| Style: | Mid-rise |
| Rooms: | 2 |
| Bedrooms: | 1 |
| Full Baths: | 1 |
| Living Space: | 665 sf. |
| Lot Size: | - |
| Parking: | Yes |
| Taxes: | $3,527.00 |
| Tax Year: | 2025 |
| Association Fees: | $582.00 |
Listing Current as of November 24, 2025 12:00pm
This listing brought to you by Brett DeRocker of First Boston Realty International.
The property listing data and information set forth herein were provided to MLS Property Information Network, Inc. from third party sources, including sellers, lessors and public records, and were compiled by MLS Property Information Network, Inc. The property listing data and information are for the personal, non-commercial use of consumers having a good faith interest in purchasing or leasing listed properties of the type displayed to them and may not be used for any purpose other than to identify prospective properties which such consumers may have a good faith interest in purchasing or leasing. MLS Property Information Network, Inc. and its subscribers disclaim any and all representations and warranties as to the accuracy of the property listing data and information set forth herein.
A&S Realty, Inc and their agents make no warranties or representations as to the accuracy of this data, although good faith efforts have been made to ensure that the data displayed on this page is as accurate as possible. In certain cases listings are syndicated through another agency, management company, or through the MLS. A&S Realty, Inc is not responsible for the data that is displayed from a syndicate partner. Listings may no longer be available, pricing may be subject to change, and any photos or descriptions may be of a similar unit or from a previous year.