




























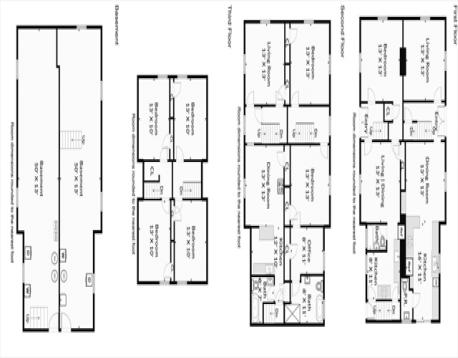
Set on a generous 5,019 sq. ft. corner lot with mature trees in prime Cambridgeport, this handsome c.1858 3-family building with 2 addresses offers exceptional potential for luxury single-family conversion, multi-unit development, or owner-occupancy with rental income. The largest owner unit at 215 Pearl Street is a charming 3-story townhouse-style home with an open kitchen and dining, 4 bedrooms, 2.5 baths, and direct basement access for possible expansion. It opens to a platform deck and side yard through the kitchen. The 174 Hamilton Street entrance serves two additional units: first floor 1-bed unit and upper 2 floors are a 2-bed unit. Enjoy beautiful grounds and gated driveway accessible from Hamilton St. creating a picture-perfect setting. Unbeatable residential and walkable location between Central Square hub and the Charles River, near parks, bike paths, MIT, Harvard, Kendall square and the BU Bridge.
| MLS Listing ID: | 73454108 |
|---|---|
| Listing Price: | $2,985,000 |
| Listing Status: | Contingent [?] |
| Neighborhood: | Cambridgeport |
| Property Type: | Multi Family |
| Bedrooms: | 7 |
| Full Baths: | 3 |
| Half Baths: | 1 |
| Living Space: | 3336 sf. |
| Lot Size: | 0.12 acres (5019 sf.) |
| Parking: | Yes |
| Taxes: | $13,313.00 |
| Tax Year: | 2026 |
Listing Current as of December 28, 2025 9:00am
This listing brought to you by Sandrine Deschaux of RE/MAX Real Estate Center.
The property listing data and information set forth herein were provided to MLS Property Information Network, Inc. from third party sources, including sellers, lessors and public records, and were compiled by MLS Property Information Network, Inc. The property listing data and information are for the personal, non-commercial use of consumers having a good faith interest in purchasing or leasing listed properties of the type displayed to them and may not be used for any purpose other than to identify prospective properties which such consumers may have a good faith interest in purchasing or leasing. MLS Property Information Network, Inc. and its subscribers disclaim any and all representations and warranties as to the accuracy of the property listing data and information set forth herein.
A&S Realty, Inc and their agents make no warranties or representations as to the accuracy of this data, although good faith efforts have been made to ensure that the data displayed on this page is as accurate as possible. In certain cases listings are syndicated through another agency, management company, or through the MLS. A&S Realty, Inc is not responsible for the data that is displayed from a syndicate partner. Listings may no longer be available, pricing may be subject to change, and any photos or descriptions may be of a similar unit or from a previous year.