























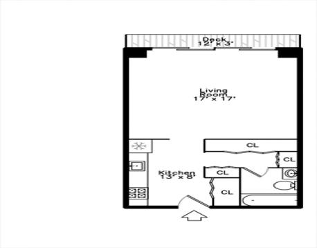
Luxury Brook House, Deeded garage parking space #295 included! Well maintained spacious, bright, modern studio, Large sliding glass door encompassing one wall of living area, City views, Juliet balcony off of living area, Updated modern kitchen, Abundant closet space includes a large walk-in closet, 24/7 security/concierge, On-site management, Package delivery room, Enjoy a great lifestyle with top notch amenities: full scale fitness center with cardio/weight/exercise rooms, steam/sauna, heated outdoor swimming pool, tennis/pickleball/basketball courts, table tennis, resident lounge with wifi, herb garden and barbecue areas, Across the street from D & E Green train lines and bus lines, Close proximity to Brookline Village and Coolidge Corner with an array of many shops, restaurants and a movie theater, Convenient to Longwood Medical area and downtown Boston, Perfect for investors or owner occupants. *living area virtually staged. *Garage parking makes your investment more valuable.
| MLS Listing ID: | 73495826 |
|---|---|
| Listing Price: | $449,000 |
| Listing Status: | Active [?] |
| Neighborhood: | Brookline Village |
| Property Type: | Condo |
| Style: | High-rise |
| Rooms: | 2 |
| Bedrooms: | Studio |
| Full Baths: | 1 |
| Living Space: | 500 sf. |
| Lot Size: | - |
| Parking: | Yes, Deeded |
| Taxes: | $4,598.23 |
| Tax Year: | 2025 |
| Association Fees: | $611.00 |
Listing Current as of May 20, 2026 5:00pm
This listing brought to you by Sada Hanna of William Raveis R. E. & Home Services.
The property listing data and information set forth herein were provided to MLS Property Information Network, Inc. from third party sources, including sellers, lessors and public records, and were compiled by MLS Property Information Network, Inc. The property listing data and information are for the personal, non-commercial use of consumers having a good faith interest in purchasing or leasing listed properties of the type displayed to them and may not be used for any purpose other than to identify prospective properties which such consumers may have a good faith interest in purchasing or leasing. MLS Property Information Network, Inc. and its subscribers disclaim any and all representations and warranties as to the accuracy of the property listing data and information set forth herein.
A&S Realty, Inc and their agents make no warranties or representations as to the accuracy of this data, although good faith efforts have been made to ensure that the data displayed on this page is as accurate as possible. In certain cases listings are syndicated through another agency, management company, or through the MLS. A&S Realty, Inc is not responsible for the data that is displayed from a syndicate partner. Listings may no longer be available, pricing may be subject to change, and any photos or descriptions may be of a similar unit or from a previous year.