














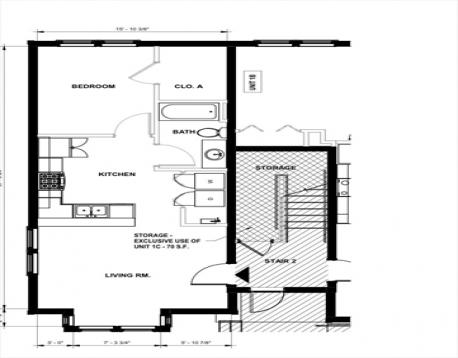
Discover modern urban living in this brand-new, ground-up construction 1-bed, 1-bath condo, ideally situated in the heart of East Boston. With thoughtful design & high-end finishes throughout, this unit offers a perfect blend of style, convenience & functionality. Bright & airy open-concept living space w/large Anderson 200 windows that fill the space w/natural light, perfect for relaxing or entertaining. Modern Kitchen w/fully equipped kitchen featuring stainless steel appliances, Quartz countertops, & ample cabinet space. Spacious bedroom w/ Huge Walk in Closet. Stylishly large bathroom w/contemporary fixtures & a relaxing ambiance. In-Unit Laundry. Hardie Board exterior. Outdoor Common Space. Ramp, no stairs to unit. Units Ideal for first-time homebuyers or those looking to downsize. Easy access Blue Line, Downtown Boston, & Logan Airport. Across from Bremen Park, Trails, Urban Gardens, Waterfront, Great Restaurants & shopping. 9 available units, pick your favorite!
| MLS Listing ID: | 73476658 |
|---|---|
| Listing Price: | $509,900 |
| Listing Status: | Active [?] |
| Neighborhood: | East Boston |
| Property Type: | Condo |
| Style: | Low-rise |
| Rooms: | 3 |
| Bedrooms: | 1 |
| Full Baths: | 1 |
| Living Space: | 600 sf. |
| Lot Size: | 0.09 acres (3750 sf.) |
| Parking: | Yes, On Street Permit |
| Taxes: | $999.00 |
| Tax Year: | 2024 |
| Association Fees: | $190.76 |
Listing Current as of February 20, 2026 8:00pm
This listing brought to you by Hunter Ware of Access.
The property listing data and information set forth herein were provided to MLS Property Information Network, Inc. from third party sources, including sellers, lessors and public records, and were compiled by MLS Property Information Network, Inc. The property listing data and information are for the personal, non-commercial use of consumers having a good faith interest in purchasing or leasing listed properties of the type displayed to them and may not be used for any purpose other than to identify prospective properties which such consumers may have a good faith interest in purchasing or leasing. MLS Property Information Network, Inc. and its subscribers disclaim any and all representations and warranties as to the accuracy of the property listing data and information set forth herein.
A&S Realty, Inc and their agents make no warranties or representations as to the accuracy of this data, although good faith efforts have been made to ensure that the data displayed on this page is as accurate as possible. In certain cases listings are syndicated through another agency, management company, or through the MLS. A&S Realty, Inc is not responsible for the data that is displayed from a syndicate partner. Listings may no longer be available, pricing may be subject to change, and any photos or descriptions may be of a similar unit or from a previous year.