Inquiry Submitted


Issue Submitting Inquiry. Please Call Us (617) 267-3485

Inquire about this listing:
For a faster response you can also call us at 617-267-3485

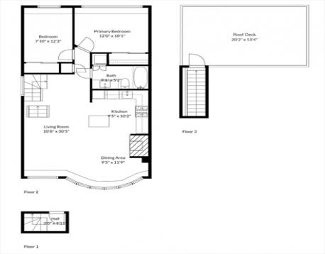
Beautifully renovated penthouse jewel box in the heart of the South End. Set on Boston Magazine’s “Best Street” in the coveted Eight Streets neighborhood, this top-floor 2-bedroom blends historic charm with modern updates throughout. Vaulted ceilings, exposed brick, skylights, and the most charming bow window create warmth and character. A sun-splashed living/dining area is centered on a wood-burning FP and opens to the kitchen, equipped with quartz counters, stainless appliances, gas cooking, and a center island with bar seating. Two serene bedrooms, including a sunny primary with three large windows with tree-top views, offer ample storage. A stylish Carrara marble bathroom features a tub with glass enclosure and in-unit laundry. Full staircase leads to a large private roof deck with sweeping skyline views—perfect for entertaining. Additional features include hardwood floors and newer central AC. Well-run 6-unit association with many updates. Truly A++ location that checks every box!

  Open House: October 4th 1:00-2:30pm

MLS Listing ID: 73438716
Listing Price: $1,175,000
Listing Status: New [?]
Neighborhood: South End
Property Type: Condo
Style: Rowhouse
Rooms: 4
Bedrooms: 2
Full Baths: 1
Living Space: 826 sf.
Lot Size: 0.02 acres (826 sf.)
Parking: -
Taxes: $11,962.00
Tax Year: 2026
Association Fees: $482.08

Listing Current as of October 03, 2025 1:00pm

This listing brought to you by Hanneman + Gonzales of Compass.

The property listing data and information set forth herein were provided to MLS Property Information Network, Inc. from third party sources, including sellers, lessors and public records, and were compiled by MLS Property Information Network, Inc. The property listing data and information are for the personal, non-commercial use of consumers having a good faith interest in purchasing or leasing listed properties of the type displayed to them and may not be used for any purpose other than to identify prospective properties which such consumers may have a good faith interest in purchasing or leasing. MLS Property Information Network, Inc. and its subscribers disclaim any and all representations and warranties as to the accuracy of the property listing data and information set forth herein.

A&S Realty, Inc and their agents make no warranties or representations as to the accuracy of this data, although good faith efforts have been made to ensure that the data displayed on this page is as accurate as possible. In certain cases listings are syndicated through another agency, management company, or through the MLS. A&S Realty, Inc is not responsible for the data that is displayed from a syndicate partner. Listings may no longer be available, pricing may be subject to change, and any photos or descriptions may be of a similar unit or from a previous year.