



































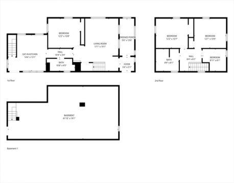
Incredible Opportunity in Hyde Park! This Hyde Park property is ideal for buyers or investors looking to create value rather than compete for fully renovated homes at the top of the market. Offering approximately 1,134 sq ft, the home features 3 bedrooms, 2 bathrooms, a bonus room, a sunroom, and a shed, providing a flexible layout that’s increasingly hard to find at this price point. The home has solid bones and a functional flow and is ready for updates. Rather than paying a premium for someone else’s finishes, this property presents an opportunity to improve the space thoughtfully over time and tailor it to your needs. A strong option for those seeking potential, flexibility, and long-term value in a competitive market.
Open House: December 20th 11:00-1:00pm
| MLS Listing ID: | 73462958 |
|---|---|
| Listing Price: | $525,000 |
| Listing Status: | New [?] |
| Neighborhood: | Hyde Park |
| Property Type: | Single Family |
| Style: | Garrison, Other (See Remarks), Garrison, Other (See Remarks) |
| Rooms: | 6 |
| Bedrooms: | 3 |
| Full Baths: | 2 |
| Living Space: | 1134 sf. |
| Lot Size: | 0.14 acres (6290 sf.) |
| Parking: | Yes, Off-Street, Paved Driveway, Off-Street, Paved Driveway |
| Taxes: | $4,686.00 |
| Tax Year: | 2025 |
Listing Current as of December 19, 2025 9:00pm
This listing brought to you by Alexandra Utrera of The Simply Sold Realty Co..
The property listing data and information set forth herein were provided to MLS Property Information Network, Inc. from third party sources, including sellers, lessors and public records, and were compiled by MLS Property Information Network, Inc. The property listing data and information are for the personal, non-commercial use of consumers having a good faith interest in purchasing or leasing listed properties of the type displayed to them and may not be used for any purpose other than to identify prospective properties which such consumers may have a good faith interest in purchasing or leasing. MLS Property Information Network, Inc. and its subscribers disclaim any and all representations and warranties as to the accuracy of the property listing data and information set forth herein.
A&S Realty, Inc and their agents make no warranties or representations as to the accuracy of this data, although good faith efforts have been made to ensure that the data displayed on this page is as accurate as possible. In certain cases listings are syndicated through another agency, management company, or through the MLS. A&S Realty, Inc is not responsible for the data that is displayed from a syndicate partner. Listings may no longer be available, pricing may be subject to change, and any photos or descriptions may be of a similar unit or from a previous year.