












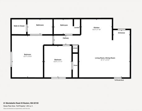
Brand new construction now offering private showings! 8 units slated to be move-in ready by Aug 31st. Choose from 2, 2+, or 3 beds, 2-3.5 baths, and 1,085-2,200 sq ft. All units offer en-suite baths, large private decks, parking (garage option), hardwood flooring, induction cooking, in-unit laundry, 9' ceilings, large fenced-in yard + patio for grilling, private storage + bike area. Unit 1 is a 2 bed (optional 2+ study), 2 bath, rear corner unit with expansive open floor plan, kitchen island, en-suite bath with double vanities, & oversized glass shower. More photos and info coming soon. State of the art heat pumps + central air, plus 1 year builder’s warranty. Builder offering special financing. Pet friendly association, close to Stony Brook T, Southwest Corridor Park, and Franklin Park! Nearby Brewery Complex features Sam Adams, The Haven + Ula Café. Enjoy the comfort of a brand new, professionally managed home with low utility costs in a vibrant neighborhood.
| MLS Listing ID: | 73505002 |
|---|---|
| Listing Price: | $759,000 |
| Listing Status: | New [?] |
| Neighborhood: | Jamaica Plain |
| Property Type: | Condo |
| Style: | Other (see Remarks) |
| Rooms: | 4 |
| Bedrooms: | 2 |
| Full Baths: | 2 |
| Living Space: | 1085 sf. |
| Lot Size: | - |
| Parking: | Yes, Paved Driveway, Exclusive Parking, Paved Driveway, Exclusive Parking |
| Taxes: | $99.00 |
| Tax Year: | 2026 |
| Association Fees: | $375.00 |
Listing Current as of April 23, 2026 11:00pm
This listing brought to you by Christian Iantosca Team of Arborview Realty Inc..
The property listing data and information set forth herein were provided to MLS Property Information Network, Inc. from third party sources, including sellers, lessors and public records, and were compiled by MLS Property Information Network, Inc. The property listing data and information are for the personal, non-commercial use of consumers having a good faith interest in purchasing or leasing listed properties of the type displayed to them and may not be used for any purpose other than to identify prospective properties which such consumers may have a good faith interest in purchasing or leasing. MLS Property Information Network, Inc. and its subscribers disclaim any and all representations and warranties as to the accuracy of the property listing data and information set forth herein.
A&S Realty, Inc and their agents make no warranties or representations as to the accuracy of this data, although good faith efforts have been made to ensure that the data displayed on this page is as accurate as possible. In certain cases listings are syndicated through another agency, management company, or through the MLS. A&S Realty, Inc is not responsible for the data that is displayed from a syndicate partner. Listings may no longer be available, pricing may be subject to change, and any photos or descriptions may be of a similar unit or from a previous year.