























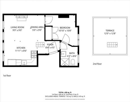
Nestled in the heart of Beacon Hill, this charming 1-bedroom, 1-bath condo offers classic appeal with modern city living. Just steps from Charles Street, popular restaurants and shops, the MBTA, major hospitals, downtown Boston, and Boston Common, this location delivers exceptional walkability and timeless Beacon Hill charm.The residence has been fully renovated from the studs out, featuring new walls, new flooring, new windows, and all-new plumbing and electrical. The modern kitchen showcases stainless steel appliances, quartz countertops, gas cooking, and sleek contemporary finishes. A spa-like bathroom offers refined fixtures and a clean, inspired design. Offered for the 1st time after the renovations, this home presents a true turnkey opportunity. A rare highlight is the private rooftop deck (~150 sq ft) with water views of the Charles, complete with new PVC decking and railings—ideal for relaxing or entertaining in one of Boston’s most sought-after neighborhoods.
Open House: February 15th 11:00-1:00pm
| MLS Listing ID: | 73469649 |
|---|---|
| Listing Price: | $739,900 |
| Listing Status: | Active [?] |
| Neighborhood: | Beacon Hill |
| Property Type: | Condo |
| Style: | Rowhouse |
| Rooms: | 3 |
| Bedrooms: | 1 |
| Full Baths: | 1 |
| Living Space: | 474 sf. |
| Lot Size: | 0.01 acres (474 sf.) |
| Parking: | - |
| Taxes: | $6,396.00 |
| Tax Year: | 2025 |
| Association Fees: | $558.97 |
Listing Current as of February 14, 2026 8:00pm
This listing brought to you by The Cobi Team of William Raveis R. E. & Home Services.
The property listing data and information set forth herein were provided to MLS Property Information Network, Inc. from third party sources, including sellers, lessors and public records, and were compiled by MLS Property Information Network, Inc. The property listing data and information are for the personal, non-commercial use of consumers having a good faith interest in purchasing or leasing listed properties of the type displayed to them and may not be used for any purpose other than to identify prospective properties which such consumers may have a good faith interest in purchasing or leasing. MLS Property Information Network, Inc. and its subscribers disclaim any and all representations and warranties as to the accuracy of the property listing data and information set forth herein.
A&S Realty, Inc and their agents make no warranties or representations as to the accuracy of this data, although good faith efforts have been made to ensure that the data displayed on this page is as accurate as possible. In certain cases listings are syndicated through another agency, management company, or through the MLS. A&S Realty, Inc is not responsible for the data that is displayed from a syndicate partner. Listings may no longer be available, pricing may be subject to change, and any photos or descriptions may be of a similar unit or from a previous year.