





























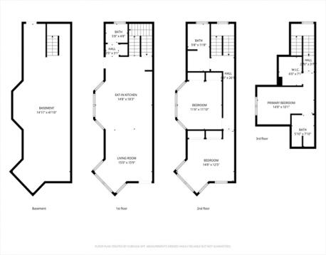
Also listed as a Single Family MLS#73495047. Please note: this is a legal single-family attached townhome with NO condo fee. Built in 2022, this exceptional 3-bedroom, 2.5-bath home offers three levels of thoughtfully designed, move-in ready living space. The sunny, open-concept first floor features a stainless steel and granite kitchen, dining area, and living room with hardwood floors, plus a convenient half bath. Upstairs, two bedrooms share a full bath, while the third-floor primary suite boasts a walk-in closet and private full bath with stand-up shower. Energy-efficient and fully insulated, the home includes Energy Star-rated appliances and windows, plus ductless mini-split heating and cooling. Two charming porches, a corner lot with lawn, and off-street parking for two cars complete the property. The unfinished basementoffers approximately 400 sq. ft. of flexible space to finish as you choose. Close to all major Boston public transportation.
| MLS Listing ID: | 73505978 |
|---|---|
| Listing Price: | $739,000 |
| Listing Status: | New [?] |
| Neighborhood: | Mattapan |
| Property Type: | Condo |
| Style: | Townhouse |
| Rooms: | 6 |
| Bedrooms: | 3 |
| Full Baths: | 2 |
| Half Baths: | 1 |
| Living Space: | 1522 sf. |
| Lot Size: | 0.06 acres (2503 sf.) |
| Parking: | Yes |
| Taxes: | $2,632.57 |
| Tax Year: | 2026 |
Listing Current as of April 23, 2026 11:00pm
This listing brought to you by Johanny Del Jesus of William Raveis R.E. & Home Services.
The property listing data and information set forth herein were provided to MLS Property Information Network, Inc. from third party sources, including sellers, lessors and public records, and were compiled by MLS Property Information Network, Inc. The property listing data and information are for the personal, non-commercial use of consumers having a good faith interest in purchasing or leasing listed properties of the type displayed to them and may not be used for any purpose other than to identify prospective properties which such consumers may have a good faith interest in purchasing or leasing. MLS Property Information Network, Inc. and its subscribers disclaim any and all representations and warranties as to the accuracy of the property listing data and information set forth herein.
A&S Realty, Inc and their agents make no warranties or representations as to the accuracy of this data, although good faith efforts have been made to ensure that the data displayed on this page is as accurate as possible. In certain cases listings are syndicated through another agency, management company, or through the MLS. A&S Realty, Inc is not responsible for the data that is displayed from a syndicate partner. Listings may no longer be available, pricing may be subject to change, and any photos or descriptions may be of a similar unit or from a previous year.