

































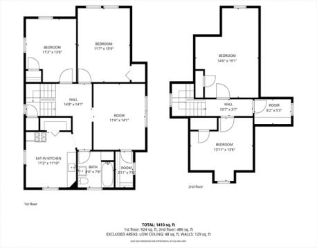
Rarely available two-family on a fabulous Allston side street, literally 1 house from the Brookline line, has been cherished by 1 family for almost 50 years. Perfect for a new owner, investor, or condo conversion. The first-floor unit offers hardwood floors, high ceilings and oversized windows with 2 spacious bedrooms, living room and eat-in kitchen. The second unit spans two levels with 3 bedrooms, flexible space, and great natural light. There are hardwood floors hiding under the carpets. Both units need cosmetic updates, but offer strong potential while maintaining the beauty of original character throughout. Enjoy yard space, 1 parking and full basement. Superb walk score and biker's paradise, with convenient access to public transit, parks, shops, and major commuter routes. A hard-to-find opportunity in a high-demand neighborhood.
| MLS Listing ID: | 73455370 |
|---|---|
| Listing Price: | $1,300,000 |
| Listing Status: | New [?] |
| Neighborhood: | Allston |
| Property Type: | Multi Family |
| Bedrooms: | 5 |
| Full Baths: | 2 |
| Living Space: | 2644 sf. |
| Lot Size: | 0.08 acres (3700 sf.) |
| Parking: | Yes |
| Taxes: | $13,195.00 |
| Tax Year: | 2025 |
Listing Current as of November 16, 2025 8:00pm
This listing brought to you by Rachel Hillman Foy of Hillman Homes.
The property listing data and information set forth herein were provided to MLS Property Information Network, Inc. from third party sources, including sellers, lessors and public records, and were compiled by MLS Property Information Network, Inc. The property listing data and information are for the personal, non-commercial use of consumers having a good faith interest in purchasing or leasing listed properties of the type displayed to them and may not be used for any purpose other than to identify prospective properties which such consumers may have a good faith interest in purchasing or leasing. MLS Property Information Network, Inc. and its subscribers disclaim any and all representations and warranties as to the accuracy of the property listing data and information set forth herein.
A&S Realty, Inc and their agents make no warranties or representations as to the accuracy of this data, although good faith efforts have been made to ensure that the data displayed on this page is as accurate as possible. In certain cases listings are syndicated through another agency, management company, or through the MLS. A&S Realty, Inc is not responsible for the data that is displayed from a syndicate partner. Listings may no longer be available, pricing may be subject to change, and any photos or descriptions may be of a similar unit or from a previous year.