





























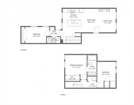
Just off Main St on a charming historic brick tree-lined street, this architecturally designed 3BR/2BA duplex blends modern luxury with city living and a private outdoor oasis. The upper level features open-concept living and dining with a fireplace, flowing into a renovated kitchen with Thermador appliances, custom cabinetry, quartzite counters, island, and pantry. This level also includes a spacious bedroom and a full designer bath with Porcelanosa tile and Toto fixtures. The lower level offers a private primary suite with ensuite bath, complete with soaking tub, double vanity, along with a third bedroom ideal for guests, office, or nursery, and in-unit W/D. Step outside to a landscaped patio with granite pavers, cedar fencing, planters, and lighting—perfect for relaxing or entertaining. 2023–2024 updates include new windows, new water heater, and conversion to energy-efficient heat pump mini-splits with added A/C. Hardwood floors and recessed lighting throughout.
Open House: April 25th 12:00-1:00pm
| MLS Listing ID: | 73506046 |
|---|---|
| Listing Price: | $1,075,000 |
| Listing Status: | New [?] |
| Neighborhood: | Charlestown |
| Property Type: | Condo |
| Style: | Rowhouse, Garden, Rowhouse, Garden |
| Rooms: | 6 |
| Bedrooms: | 3 |
| Full Baths: | 2 |
| Living Space: | 1059 sf. |
| Lot Size: | - |
| Parking: | Yes, On Street Permit |
| Taxes: | $4,924.46 |
| Tax Year: | 2026 |
| Association Fees: | $275.00 |
Listing Current as of April 23, 2026 11:00pm
This listing brought to you by Tracy Shea of Coldwell Banker Realty - Boston.
The property listing data and information set forth herein were provided to MLS Property Information Network, Inc. from third party sources, including sellers, lessors and public records, and were compiled by MLS Property Information Network, Inc. The property listing data and information are for the personal, non-commercial use of consumers having a good faith interest in purchasing or leasing listed properties of the type displayed to them and may not be used for any purpose other than to identify prospective properties which such consumers may have a good faith interest in purchasing or leasing. MLS Property Information Network, Inc. and its subscribers disclaim any and all representations and warranties as to the accuracy of the property listing data and information set forth herein.
A&S Realty, Inc and their agents make no warranties or representations as to the accuracy of this data, although good faith efforts have been made to ensure that the data displayed on this page is as accurate as possible. In certain cases listings are syndicated through another agency, management company, or through the MLS. A&S Realty, Inc is not responsible for the data that is displayed from a syndicate partner. Listings may no longer be available, pricing may be subject to change, and any photos or descriptions may be of a similar unit or from a previous year.